Beschrijving
Maximaal uit- en opgebouwde woning met twee dakkapellen op zolder (1998), een erker (2002) en een uitbouw voor de keuken en bijkeuken (1999)
Grote gezinnen, opgelet!
Waterrad 82 is een geweldige grote woning met maar liefst vijf slaapkamers. De living is maximaal uitgebouwd met een erker aan de voorzijde en een uitbouw aan de achterzijde waarin de keuken en bijkeuken is gesitueerd. De woning staat op een ruim perceel van 164 m2 en heeft een zeer verzorgde achter- en voortuin. De woning is in 1996 nagenoeg volledig gerenoveerd waarbij alle geveldelen en kozijnen zijn vernieuwd en de gevels ook zijn geisoleerd.
Heeft u interesse in deze XL woning? Yvonne van der Jagt Makelaardij nodigt u graag uit voor een bezichtiging.
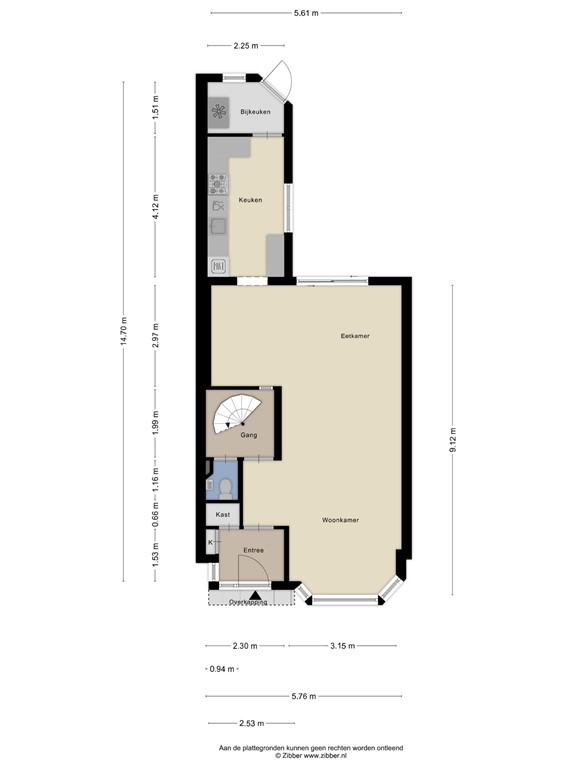
INDELING
Fijne plek in de straat
Als u aan komt rijden de straat in, ziet u al dat de woning lekker ‘vrij’ ligt. U heeft niet direct te maken met overburen en u kijkt vrij de straat in. De verzorgde voortuin nodigt zeker uit om een tuinset te plaatsen, want hier heeft u de middag- en avondzon. Netjes bestraat en aan drie zijden afgescheiden met een sjiek metalen sierhekwerk! Via de overkapte entree komt u in de hal met deuren naar de meterkast (1996), berging en de woonkamer.
Living
De living, daar kunt u iets mee! Ruimte voor een riante zithoek aan de voorzijde, mede vanwege de erker (2002). De lichtinval is hier maximaal, vanwege de zijramen in de erker. Aan de achterzijde is een schuifpui geplaatst en hier is op diverse plekken ruimte voor een grote eettafel met zes tot acht stoelen. Op de vloer ligt laminaat, de wanden en plafonds zijn gestuukt.
Keuken en bijkeuken in de aanbouw
Mooie verrassing! De keuken en bijkeuken bevinden zich volledig in de aanbouw! De keuken is geplaatst in het jaar 2000 in een L-opstelling, met een tijdloos granieten werkblad. Aan de overzijde is een leuke koffiecorner ingericht met ernaast een groot raam (op het zuiden). Inbouwapparatuur: vijfpits gaskookplaat met oven en afzuigkap (2015), vaatwasser en combi oven-magnetron (2020).
Erachter de bijkeuken. De Amerikaanse koelvriescombinatie blijft voor u achter. Deze ruimte wordt verwarmd en er is een wateraansluiting. Via de loopdeur bereikt u de achtertuin.
Verzorgde achtertuin
De achtertuin is (vanaf de schuifpui) ongeveer 12 meter diep en ligt op het oosten. Vanwege de diepte heeft u er het overgrote deel van de dag zon! Zeer verzorgde achtertuin, volledig bestraat en op de erfafscheidingen staan nette, gefundeerde, gemetselde muren. Maximale privacy gewaarborgd! Is het te warm, dan zoekt u de schaduw op onder het zonnescherm (2003) dat aan de gevel is gemonteerd. Achter in de tuin staat een berging van 7 m2 (bitumen 2008), voorzien van een lichtkoepel. De tuin beschikt over een achterom via een nette steeg.
Eerste verdieping met drie slaapkamers
Via de tussenhal (met deur naar de toiletruimte en grappig raampje waardoor u richting de keuken kijkt) bereikt u de eerste verdieping met drie riante slaapkamers, alle met rechte wanden, en een badkamer. Overal ligt een nette neutrale lichtgekleurde laminaatvloer. De slaapkamer aan de voorzijde heeft een inbouwkast met spiegel. De linker slaapkamer aan de achterzijde heeft een deur naar een dakterras.
Badkamer
De badkamer dient te worden gemoderniseerd. Zeker een mooie ruimte waarin nu een ligbad is geplaatst met handdouche, verder een wastafel met meubel, een toilet en een radiator.
Tweede verdieping met twee slaapkamers
De tweede verdieping is bereikbaar via een vaste trap en biedt toegang tot een voorzolder alwaar de aansluiting voor de wasmachine is aangebracht en de cv-ketel (2025) is opgesteld. Erachter maar liefst twee slaapkamers met twee dakkapellen (1998)! Ook deze verdiepingsvloer is van beton, evenals de eerste verdieping en de begane grond vloer.
Gemeente Stede Broec
De woning ligt op steenworp afstand van een groot park, een speeltuintje, een sporthal, een supermarkt en een basisschool. Verder voorziet Gemeente Stede Broec in alles voor het hele gezin: NS-station Bovenkarspel-Grootebroek en overdekt winkelcentrum het Streekhof (met gratis parkeren) is vijf a tien minuten fietsen. Naast het winkelcentrum kunt u gezellig een avondje uit in Theater Het Postkantoor. Recreatiegebied het Streekbos, basis- en middelbaar onderwijsscholen, sportfaciliteiten, een overdekt zwembad en zorgvoorzieningen bevinden zich allemaal op 5 tot 10 minuten fietsafstand van de woning. Via de N307 rijdt u binnen 10 a 15 minuten op de A7 richting Amsterdam.
Plattegronden
176638741_1573394_water_begane_grond_tu_first_design_20250910_cb5989.jpg
176638741_1573394_water_begane_grond_first_design_20250910_aa6ec5.jpg
176638741_1573394_water_eerste_verdiepi_first_design_20250910_132428.jpg
176638741_1573394_water_tweede_verdiepi_first_design_20250910_f51510.jpg
176638741_1573394_water_berging_first_design_20250910_1dc13f.jpg