Beschrijving

Bieden vanaf € 695.000,- k.k.

Sfeervolle en energiezuinige vrijstaande woning met A label, warmtepomp, 22 zonnepanelen en een zee aan leefruimte vanwege de stijlvolle aanbouw met enorm veel lichtinval. Naast de moderne keuken en dito badkamer telt de woning 5 slaapkamers en is er de afgelopen jaren veel geïnvesteerd in verduurzaming en modernisering van de woning. Ook heel prettig is de inpandig te bereiken en geïsoleerde garage met 2 daglichten, de wasmachineopstelling en een meer-persoons sauna. En dan de tuin… een plaatje waar u de hele dag van de zon en op het heetst van de dag van de schaduw kan genieten. Er is een berging met aangesloten en hele gezellige overkapping. Een heerlijke plek om de dag af te sluiten en heerlijke zomeravonden in door te brengen.

De woning ligt in een rustige woonomgeving met alleen bestemmingsverkeer, speeltuintje en scholen op een steenworp afstand. Als dit uw interesse heeft geprikkeld vertellen wij u graag meer tijdens een bezichtiging waarbij u de sfeer van deze woning zelf kan ervaren.

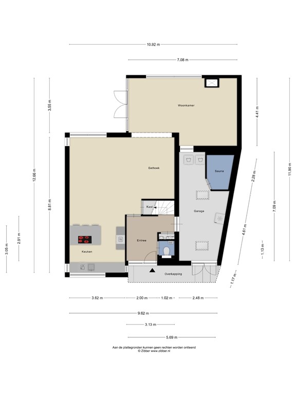
Entree
Vóór de woning kunnen er op eigen terrein 2 auto’s worden geparkeerd, en rijdt u elektrisch dan is kunt u direct inpluggen op het laadstation. Achter de voordeur, bij de overdekte entree, stapt u een ruime hal in. Op de vloer is een pvc-vloer in visgraat gelegd met vloerverwarming, de wanden zijn spachtelputz gestuukt en het plafond is strak gestuukt. 
Een designdeur geeft toegang tot de toiletruimte waar de vloer is doorgelegd. In 2024 is deze ruimte vernieuwd en voorziet in een wandcloset tegen een modern betegelde wand met plateau, de wanden zijn sfeervol behangen en er is een hoekfonteintje en centraal afzuigsysteem.
Vanuit de hal is er toegang tot de inpandig te bereiken garage, de trapopgang naar de slaapverdiepingen en een designdeur met glas naar de living.

Living
Royale living met enorm veel lichtinval en een 2e zithoek in de speelse aanbouw. De in visgraat gelegde pvc-vloer met vloerverwarming, tevens hoofdverwarming, is hier doorgelegd. Het plafond is gestuukt met dimbare LED-inbouwspots en bij de wanden wisselen behang, stuukwerk en houten sierwanden elkaar af.
In de diepe trapkast is de vloer ook doorgelegd en hier bevindt zich de unit voor de vloerverwarming. 
De aanbouw is echt een eyecatcher met hoogoplopend gestuukt plafond, veel lichtinval en openslaande deuren naar de tuin. Voor de houten sierwand is een breed tv-meubel met aansluitend een gashaard in een strakke schouw en in 2024 is hier nog een airco geplaatst die niet alleen koelt maar ook verwarmt.
Het raam boven de tv-kast kan open zodat er ook geventileerd kan worden.

Keuken
Moderne keuken in lichte kleurstelling waar een kookeiland met bar en een diep keramiek werkblad is geplaatst. Het eiland met inductie kookplaat en de geïntegreerde afzuigkap in het plafond wordt verlicht door LED-inbouwspots. 
De keuken heeft veel werkblad, soft-close laden, geïntegreerde besteklade, een gloednieuwe vaatwasser, brede spoelbak en een kokendheet waterkraan van het merk Selsiuz met waterfilter, veel kastruimte, waaronder een apothekerskast, groot model oven/magnetron en een koelkast.
Er is in 2024 een groot kunststof kozijn met HR++ glas boven het werkblad geplaatst en een zijraam kan open wat tijdens het koken wel zo fijn is. Op de vloer ligt een donkere pvc-vloer en het plafond is gestuukt. Echt een feest om hier te kokkerellen!

Garage
Vanuit de hal geeft een deur met houten sierpaneel toegang tot de inpandig te bereiken garage waar in 2021 kunststof openslaande geïsoleerde deuren zijn geplaatst. 2 Dakramen geven direct daglicht, de garage is geïsoleerd, wordt verwarmd door een radiator, de omvormer voor de zonnepanelen is hier geplaatst en naast de wasmachine- en drogeraansluiting is er voor uw ontspanning en “me time” een meer-persoons sauna.

Tuin
Fijne tuin op het noordwesten waar u de hele dag van de zon kan genieten met op het heetst van de dag bij de pergola een schaduwplek. De tuin is via de zijpoort met deur te bereiken vanaf de voorzijde. In de sfeervol aangelegde tuin ligt een groot terras, er staat een sierappel- en perenboom en bij de berging met verlichting en elektra is een grote en gezellige overkapping waar u ongetwijfeld hele gezellige zomeravonden zal doorbrengen.

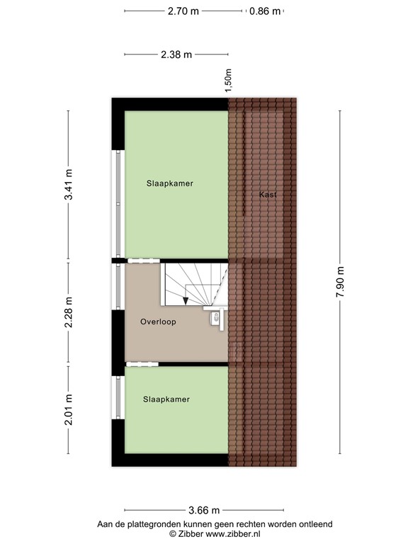
1e Verdieping
De trapopgang naar de slaapverdieping is bekleed met laminaat en trapverlichting op een bewegingssensor. Op de betonnen verdiepingsvloer ligt laminaat met brede vloerdelen wat in de slaapkamers is doorgelegd.
1e Slaapkamer voorzijde – ruime kamer met recht opgetrokken wanden en een groot houten kozijn met dubbel glas en een uitzetraam. De 2 ramen aan de zijkant worden in december nog vervangen voor kunststof kozijnen met HR++ glas.
2e Slaapkamer achterzijde – ruime speelse kamer vanwege het hoogoplopend plafond. Op de wanden zit vliesbehang, er is een vaste kastenwand, een dakraam en een deur naar een klein balkonnetje.
3e Slaapkamer achterzijde – nog een ruime kamer met recht opgetrokken en met vliesbehang behangen wanden. Deze kamer heeft een vaste kast en breed kozijn met uitzetraam en zicht op de gezellige tuin.

Badkamer
Trendy badkamer met grote wand- en vloertegels in moderne kleurstelling. Er is een ruime douchehoek met glazen deur en wanden, thermostaatkraan met hand- en regendouche, drainafvoer en een koofje voor de shampoo. Als u wat meer tijd heeft en lekker wil relaxen dan kan dat in dit grote duo ligbad met thermostaatkraan en handdouche. Er is een 2e wandcloset, een wastafelmeubel met porseleinen plateau en 2 wasbakken, brede laden en een spiegel met verlichting. In het gestuukte plafond zijn inbouwspots voor de verlichting, er is een designradiator, een centraal afzuigsysteem en het raam kan open voor de natuurlijke ventilatie.

2e Verdieping
Houten trap naar de 2e verdieping met een houten verdiepingsvloer waar marmoleum over de gehele verdieping in de kamers is doorgelegd.
Op de overloop is de cv-installatie en de warmtepomp geplaatst en alle ramen op deze verdieping worden in december vervangen voor kunststof kozijnen met HR++ glas.
4e Slaapkamer – leuke kamer met schuin en geïsoleerd dak en bergruimte achter de knieschotten, hier komen dus ook nieuwe kozijnen.
5e Slaapkamer – kleine kamer wat door de huidige bewoners als bergruimte wordt gebruikt maar bijvoorbeeld ook goed te gebruiken als werkruimte. Achter het knieschot zit het centraal afzuigsysteem. 

Bijzonderheden:
-	In december worden 3 kozijnen op de 1e en 2e verdieping vervangen voor kunststof kozijnen met HR++ glas
-	22 Zonnepanelen in 2018 en 2023 geplaatst met fabrieksgarantie 
-	Garantie airco, vaatwasser, zonnepanelen en kunststof kozijnen gaat over op nieuwe eigenaar
-	Trespa gevelbekleding bij de aanbouw en kunststof gevelbekleding onder het keukenraam
-	Rustige woonomgeving en alleen bestemmingsverkeer 
-	Speeltuintje en scholen op een steenworp afstand
-	Vlakbij supermarkt, park en honden uitlaatveld

Kenmerken