Beschrijving

Bieden vanaf € 398.000,- k.k.

Wat een leuke locatie! Deze goed onderhouden eengezinswoning met tuin op het zuidoosten heeft zicht op Gemeentegroen en een brede sloot met daarachter een voetbalveldveld met speeltuintje. Nog een fijne bijkomstigheid is dat er geen auto’s voor de deur rijden, er loopt een fietspad dus lekker rustig wonen!
Naast de moderne keuken en dito badkamer telt de woning 3 slaapkamers met mogelijkheid voor een 4e slaapkamer. De fijne tuin heeft een ruime schuur met kunststof gevelbekleding en er is een achterom. Het winkelcentrum, scholen, sportfaciliteiten, het centrum met station en het Stadsstrand liggen op een steenworp afstand. Als dit uw interesse heeft geprikkeld zien we u graag bij een bezichtiging!

Entree
Parkeren kan op de parkeerplaats achter de woning. Via de keurige voortuin heeft u toegang tot de woning met achter de degelijke voordeur een ruime hal met donkere vloertegels en heeft u toegang tot de fijne en praktische frontberging.
De toiletruimte heeft licht betegelde wanden en de donkere vloer is vanuit de hal doorgelegd. U treft hier een wandcloset, Belgisch hardstenen fonteintje en natuurlijke ventilatie. Een roededeur met zijramen geeft toegang tot de living.

Living
Gezellige living met massief houten parketvloer en de wanden zijn behangen. Vanaf uw bank geeft een groot raam met ventilatierooster zicht op de speelveldjes achter de sloot en heeft u vrij uitzicht. Onder de open trap is een plateau geplaatst voor de computer of een speelhoekje voor de kleintjes.
Bij de eethoek geven grote raampartijen tot aan de vloer zicht op de tuin dus heel fijn lichtinval. En als het heel erg zonnig is kan het elektrisch te bedienen zonnescherm worden uitgezet.

Keuken
Moderne keuken in lichte kleurstelling met een hoog granieten werkblad voorzien van een waterkering. Op de vloer liggen donkere vloertegels en achter het werkblad zijn lichte wandtegels geplaatst. De keuken voorziet in veel laden, een Le Mans uitschuifsysteem, bovenkastjes met bladverlichting en diverse inbouwapparatuur, zoals: een koel/vriescombinatie, fornuis met 6 gaspitten en een brede oven, rvs-afzuigkap met de afvoer naar buiten en een vaatwasser.
Bij de keuken zit de tuindeur met een plissé-hor.

Tuin
De zonnig gelegen tuin op het zuidoosten is grotendeels bestraat en in de zomer is het echt genieten. Wordt het te warm… dan kan het zonnescherm worden uitgezet! Er is een achterom richting de parkeerplaats en de ruime schuur met een pannen puntdak is bekleed met kunststof.

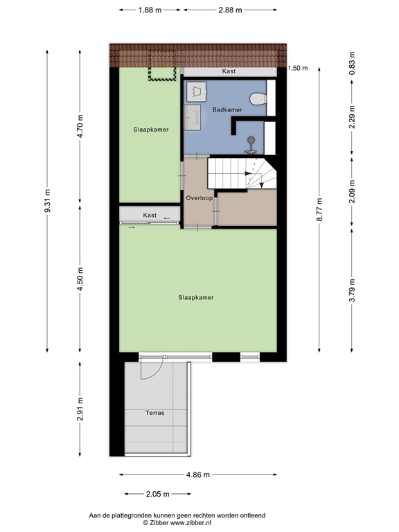
1e Verdieping
Bovenaan de trapopgang is een halletje met deur naar de slaapverdieping. Wel zo prettig want zo blijven warmte en geluiden beneden! Op de betonnen verdiepingsvloer is een laminaatvloer doorgelegd in de slaapkamers.
1e Slaapkamer voorzijde – riante slaapkamer over de gehele breedte van de woning met een vaste kastenwand, het raam kan open en een deur geeft toegang tot het balkonnetje met zicht op veel groen en de speelveldjes. Alleen deze kamer heeft nog enkel glas in de houten kozijnen en mocht het nodig zijn dan kunnen hier 2 kamers worden gerealiseerd.
2e Slaapkamer achterzijde – leuke afmeting kamer met een Velux dakraam en een deurtje met toegang tot bergruimte.

Badkamer
De badkamer met modern betegelde wanden en dito vloer voorziet in een 2e wandcloset, designradiator, wastafelmeubel met zijplateau’s, 2 laden, een spiegelkastje met verlichting en tot slot een douchehoek met thermostaatkraan, hand- en regendouche, drainafvoer, koofje voor de shampoo en een zitplateau. Hoe lekker is dat … na een lange werkdag even zitten tijdens het douchen! Voor de ventilatie zit er een centraal afzuigsysteem en het Velux dakraam kan open voor de natuurlijke ventilatie. Het plafond is gestuukt en is voorzien van inbouwspots. Voor de wasmachine is een betegelde ombouw gemaakt met een eveneens betegeld plateau.

2e Verdieping
Trapopgang naar de voorzolder van de 2e verdieping met ook hier een betonnen verdiepingsvloer. Er is fijn lichtinval vanwege een draai/kiepraam met hor in een kunststof kozijn en toegang tot de 3e slaapkamer. Dit is een royale slaapkamer met een laminaatvloer, dubbel glas in een kunststof kozijn met een draai/kiepraam met hor en 2 vaste zijramen aan de tuinzijde. Aan de voorzijde is een dakkapel geplaatst met dubbel glas in een houten kozijn, een uitzetraam en aan de buitenzijde afgewerkt met trespa.
CV ruimte – naast de cv-installatie met vulkraan, in 2020 in eigendom is geplaatst, is er plek voor de droger en kan er indien gewenst een 2e wasmachineaansluiting worden gerealiseerd. Het centraal afzuigsysteem zit in deze ruimte, de dakkapel loopt in deze ruimte door met een uitzetraam en er is volop bergruimte.

Bijzonderheden:
-	Betonnen verdiepingsvloeren
-	Schilderwerk buitenom 2020
-	Glasvezel bij de voordeur en voor aan de tuin – keuze nieuwe bewoner KPN of Ziggo
-	Fijne en rustige woonomgeving

Kenmerken