Beschrijving

Bieden vanaf € 750.000,- k.k.

Wat een ruimte biedt deze riante 2/1 kap woning met maar liefst 883 mᵌ inhoud in een fijne woonomgeving met alleen bestemmingsverkeer en een speeltuintje in het hofje. Na 46 jaar woonplezier en de nodige verbouwingen en renovaties draagt de verkoper graag het stokje over aan een volgende generatie waarbij gemeld kan worden dat er een goed onderhouden woning wordt overgedragen. De woning met royale living, een grote tuinkamer en kantoor telt maar liefst 5 royale slaapkamers, 2 badkamers, een waskamer, inpandig te bereiken garage, 2 dakterrassen en een fantastische zonnige tuin aangelegd door een tuinarchitect. 
De woning heeft 7 zonnepanelen en ligt op een steenworp afstand van scholen, de binnenstad, het winkelcentrum en het Stadsstrand. Echt een bezichtiging waard om de sfeer en de mogelijkheden te ervaren!

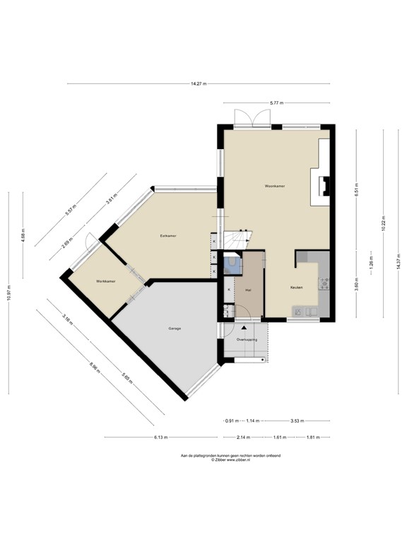
Entree
Parkeren kan op eigen terrein en een overdekte entree met buitenkraan en stopcontacten, deur naar de garage en de voordeur met enkel glas en een zijraam geeft toegang tot de woning.
Achter de voordeur een ruime hal met tegelvloer die is doorgelegd in de living en tuinkamer, een garderobehoek, radiator en een toilet met lichte wandtegels, wandcloset, hoekfonteintje en centraal afzuigsysteem.

Keuken
Een van Gils keuken in hoekopstelling met hoog natuurstenen werkblad en achterwand met lichte “witjes” wandtegeltjes, een groot raam in kunststof uitgevoerd met HR++ glas en ventilatierooster en zicht op het gezellige hofje.
De keuken voorziet in veel kastruimte, laden, 2 carrouselkasten, bovenkastjes met bladverlichting en diverse inbouwapparatuur, zoals: een vaatwasser (2024), oven (2020), koel/vriescombinatie (2022), rvs afzuigkap (2025) met de afvoer naar buiten, magnetron, 5 pits gaskomfoor en de 1½  spoelbak met een Quooker en close-in boiler.

Living
Een riante tuingerichte living met veel lichtinval, openslaande deuren met hor naar de fijne tuin, zijraam tot aan de vloer en de kozijnen zijn in 2010 uitgevoerd in kunststof met HR++ glas. De wanden zijn granol gestuukt, voor de koude winteravond kunt de open haard, met een breed plateau, lekker opstoken en er zit een schilderij ophangsysteem.
Er is een open trap naar de slaapverdieping en toegang tot de tuinkamer.

Tuinkamer
Fijne en eveneens royale tuinkamer met grote raampartijen in kunststof kozijnen met HR++ glas en ventilatieroosters. De kamer wordt verwarmd door plaatradiatoren, is de spil van de woning en zal ongetwijfeld een favoriete plek zijn om de dag door te brengen. Vanuit de tuinkamer heeft u toegang tot het kantoor.

Kantoor
Vanuit de tuinkamer heeft u toegang tot het kantoor met een laminaatvloer, een tuindeur en vanuit deze kamer is er toegang tot de inpandig te bereiken garage.
De ruimte leent zich ook uitstekend voor een praktijk aan huis, via de zijpoort in de tuin heel eenvoudig te bereiken.

Garage
Ruime inpandig te bereiken garage met spouwmuur, extra deur naar de overdekte entree en geïsoleerde segmentendeur. De garage is vorstvrij, er zit een radiator, de omvormer van de zonnepanelen en loopt taps toe. Enorm veel bergruimte dus!

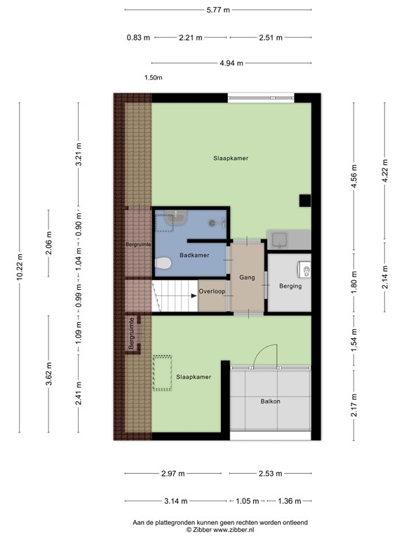
1e Verdieping
Open trap naar de slaapverdieping met betonnen verdiepingsvloer, een afgesloten “tussenhal” en toegang tot de overloop en een ruim dakterras met zicht op de tuin. Het dakterras is overigens ook vanuit de slaapkamer te bereiken. Bij het dakterras zit kunststof gevelbekleding en trespa afwerking. 
1e Slaapkamer achterzijde – royale kamer met recht opgetrokken en behangen wanden, kunststof kozijnen met draai/kiepramen en horren en ook het hoge zijraam is in kunststof geplaatst. Ook hier zijn de ramen in HR++ uitgevoerd. 
2e Slaapkamer voorzijde – ruime kamer met recht opgetrokken en behangen wanden en zicht of het hofje. In deze kamer staat een infrarood sauna die voor u achterblijft.
3e Slaapkamer – riante kamer, type balzaal, met draai/kiepdeur en plissé hor naar het dakterras, ook hier zijn de kozijnen in kunststof met HR++ glas uitgevoerd. Achter de louvredeuren treft u een diepe inloopkast en er is enorm veel bergruimte achter de knieschotten.

1e Badkamer
In 2010 is de badkamer vernieuwd en uitgevoerd in licht betegelde wanden en een donkere vloer, aluminium plafond met inbouwspots, raampartij met draai/kiepraam in kunststof kozijn voor de natuurlijke ventilatie, ook centrale afzuiging en een douchehoek met glazen deur, thermostaatkraan, drainafvoer en een zitplateau. Neemt u even “me-time” dan nodigt dit grote ligbad met jacuzzi wel uit om daar lekker van te genieten. Verder treffen we hier nog een 2e wandcloset, brede porseleinen wastafel met 2 kranen, een spiegelkast, stopcontacten en een designradiator om de handdoeken op warmen en te drogen.

Waskamer
Dat is fijn, zo’n aparte waskamer met betegelde vloer en wanden, de wasmachine- en drogeraansluiting, een radiator, ruimte voor kasten en centrale afzuiging.

2e Verdieping
Vanuit het afgesloten trappenhuis geeft een dichte trap toegang tot de 2e verdieping met een betonnen verdiepingsvloer. Op de vloer ligt houtlook zeil wat in de slaapkamers is doorgelegd. Deze verdieping is in 2010 verbouwd naar de huidige indeling.
4e Slaapkamer achterzijde – nog zo’n riante kamer! Ook hier treft u een kunststof kozijn met HR++ glas, wanden met vliesbehang, bergruimte en een pantry met spoelbak, tafelmodel koelkast, bovenkastjes met bladverlichting en stopcontacten. 
5e Slaapkamer voorzijde – speelse kamer met ook hier weer kunststof kozijnen, toegang tot een eigen dakterras met balkontegels, de dakbedekking eronder is in 2023 vervangen, en u heeft hier super uitzicht met de mooiste zonsondergangen. In 2025 is er een airco geplaatst die niet alleen koelt maar ook verwarmd, de wanden zijn behangen met vliesbehang en er zit nog een Velux dakraam met verduisteringsgordijn. In het kastje bij het knieschot zit het 2e centraal afzuigsysteem voor de 2e badkamer.
Dé ideale verdieping voor bijvoorbeeld thuiswonende kinderen.
CV ruimte – flinke ruimte waar niet alleen de cv-installatie met vulkraan is geplaatst maar ook het centraal afzuigsysteem en er ook best nog wat bergruimte.

2e Badkamer
In 2010 is de 2e badkamer gerealiseerd en uitgevoerd in licht betegelde wanden, donkere vloer, een diepe inloopdouche met thermostaatkraan en drainafvoer, elektrische designradiator, wastafel, 3e wandcloset, centraal afzuigsysteem en het Velux dakraam kan open voor de natuurlijke ventilatie. Inbouwspots voor het licht en stopcontacten voor het opladen van de elektrische tandenborstel.

Tuin
Deze fantastische en grote tuin is de trots van de huidige eigenaar…. en met recht! De tuin is aangelegd door een Engelse tuinarchitect die er een mooie sfeer in heeft gebracht. Er zijn meerdere terrassen zodat er gedurende de dag kan worden gekozen voor zon of schaduw. Zo is eer ook een terras met “borrelbank” waar u in de zomer tot ca. 21.00 uur van de zon kan genieten. Er is een zijpoort, overkapping, een vijvertje, buitenkraan, buitenstopcontacten en een fruitboom, een heerlijk stoofpeertje! Oftewel…. een tuin om vooral van te genieten!

Bijzonderheden:
-	Kunststof kozijnen in 2010 geplaatst met HR++ glas, keralit gevelbekleding en trespa boeidelen waardoor de woning als onderhoudsvriendelijk gekenmerkt kan worden
-	Dakbedekking platte daken in 2022 vernieuwd, zit nog garantie op
-	Kruipruimte geïsoleerd met hydro schelpen in 2001
-	In 2008 zijn de gevels opnieuw gevoegd en geïmpregneerd
-	Op steenworp afstand van scholen, winkelcentrum, de binnenstad en het Stadsstrand
-	Speeltuintje in het hofje voor de kleintjes en een voetbalveldje aan de achterzijde
-	Fijne en rustige woonomgeving

Kenmerken