Beschrijving

Bieden vanaf € 379.000,- k.k.

Verrassend ruime eengezinswoning met een tuingerichte living, ruime keuken met diverse inbouwapparatuur, 3 slaapkamers met recht opgetrokken wanden op de 1e verdieping en een 4e riante kamer op de 2e verdieping met 2 dakkapellen en de mogelijkheid om een 5e slaapkamer te realiseren, onderhoudsvriendelijke tuin met berging en achterom en 4 zonnepanelen. De woning ligt in een fijne woonomgeving op steenworp afstand van scholen, supermarkt, kinderopvang en het park. De woning is vanaf 1 juli beschikbaar waardoor u deze zomer al van dit leuke huis kan genieten!

Entree
Geheel bestrate voortuin met gemetseld muurtje en buitenkraan. Ook een hele fijne plek om te zitten in het avondzonnetje. Achter de voordeur ligt de hal met gestuukte wanden en een laminaatvloer, de trapopgang en het toilet met deels licht betegelde wanden en vloer, staand toilet, fonteintje en centraal afzuigsysteem.

Living
Een roededeur met facet geslepen glas geeft toegang tot de tuingerichte living met gestuukte wanden en dito plafond met een platte plint. Op de vloer ligt laminaat wat is doorgelegd vanuit de hal en ook in de diepe en praktische trapkast is het laminaat doorgelegd. Er kan fijn worden geventileerd d.m.v. het uitzetraam aan de tuinzijde en een tuindeur geeft toegang tot de zonnig gelegen tuin.

Keuken
Ruime keukenopstelling met verhoogd werkblad uitgevoerd in composiet en veel werkruimte. Vanwege de grote raampartij met ventilatierooster en een uitzetraam heeft u prettig lichtinval op het werkblad. De keuken met enorm veel bergruimte in de soft-close laden, kastjes, carrouselkast en bovenkastjes met bladverlichting voorziet in diverse inbouwapparatuur, zoals: een grote oven, separate magnetron, koel-vriescombinatie, vaatwasser, 5 pits gaskomfoor, afzuigkap met de afvoer naar buiten en een kick-space. Opvallend zijn de vele stopcontacten waar je er nooit genoeg van kan hebben in een keuken en de achterwand is betegeld met lichte metrotegeltjes.

Tuin
Fijne en zonnig gelegen tuin op het zuidoosten. De tuin is geheel bestraat met gezellige hoekjes en volop plek om van de zon te genieten. De sierlijke palmboom geeft een extra zomers tintje aan de tuin. Er is een handmatig te bedienen zonnescherm met een grote uitval, een buitenkraan en een grote houten berging met verlichting, stopcontacten en een betonnen vloer. De tuin is via het achterom te bereiken.

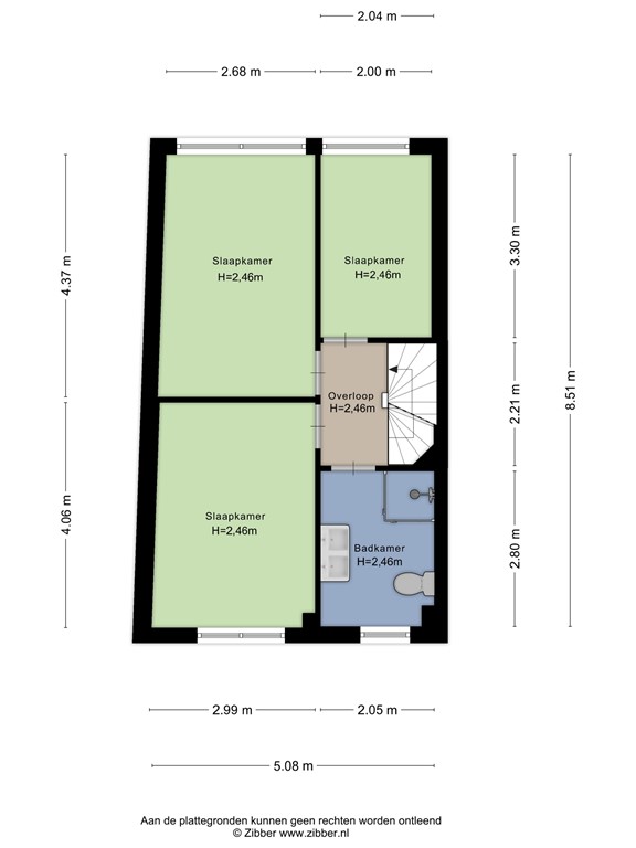
1e Verdieping
Trapopgang met spachtelputz gestuukte wanden naar de slaapverdieping met een betonnen verdiepingsvloer en een laminaatvloer die zonder drempels is doorgelegd in de slaapkamers.
1e Slaapkamer achterzijde – deze slaapkamer heeft recht opgetrokken en gestuukte wanden en een ombouw om de radiator. Hardhouten kozijn met HR+ glas en een hor.
2e Slaapkamer achterzijde – ruime kamer met recht opgetrokken en gestuukte wanden. Ook deze kamer heeft een radiatorombouw en een hor bij het raam wat open kan.
3e Slaapkamer voorzijde – ruime slaapkamer met recht opgetrokken en gestuukte wanden, 1 wand is behangen en ook deze kamer heeft een hor voor het raam wat open kan.

Badkamer
Ruime badkamer met licht betegelde wanden en dito vloer. Naast het centraal afzuigsysteem kan het raam open voor de natuurlijke ventilatie. Er is een breed wastafelmeubel met 2 porseleinen wasbakken en 2 brede laden, een spiegelkastje met verlichting, een “senioren” staand toilet, grote radiator en een douchecabine met thermostaatkraan.

2e Verdieping
Open trap naar de zolderverdieping met een betonnen verdiepingsvloer. De wanden zijn gestuukt, op de voorzolder is een laminaatvloer gelegd en hier bevinden zich de wasmachine- en drogeraansluiting, de cv-installatie, het centraal afzuigsysteem en de omvormer voor de zonnepanelen.
4e Slaapkamer – royale zolderkamer met kunststof dakkapellen aan de voor- en achterzijde met elektrisch te bedienen rolluiken. Voor de draai/kiepramen zijn losse horren aanwezig en in de vaste ramen zitten ventilatieroosters. De wanden en het plafond met inbouwspots op een dimmer zijn gestuukt en de laminaatvloer is vanuit de voorzolder doorgelegd. Aan beide zijden is extra bergruimte achter de knieschotten dus voldoende ruimte om uw spullen op te bergen. Er is indien gewenst vrij eenvoudig een 5e slaapkamer te realiseren

Bijzonderheden:
-	Fijne woonomgeving op steenworp afstand van scholen, supermarkt, kinderopvang en het park
-	Betonnen verdiepingsvloeren
-	Energielabel B
-	4 Zonnepanelen die in 2022 na afgifte van het Energielabel zijn geplaatst
-	Onderhoudsvriendelijke voor- en achtertuin

Kenmerken