Beschrijving

Bieden vanaf € 395.000,- k.k.

Wat een leuke woning! Deze trendy en perfect onderhouden eengezinswoning heeft een sfeervolle living, halfopen keuken met aangesloten bijkeuken, 4 slaapkamers en vrijwel gloednieuwe moderne badkamer. De ruim 13 meter diepe tuin op het noordoosten staat in de zomer garant voor veel zonuren, ook het avondzonnetje! In 2023 zijn op de begane grond kunststof kozijnen met HR++ glas geplaatst nadat er in 2022 een A-label is afgegeven. Scholen, winkels, station en de binnenstad zijn op een steenworp afstand dus qua locatie zit u hier helemaal top!

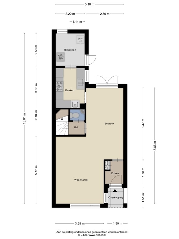
Entree
Parkeerplaatsen zijn voor de deur en via de keurig bestrate tuin geeft een overdekte entree toegang tot de woning. Achter de kunststof voordeur die in 
2023 is geplaatst is de hal met een tegelvloer, lambrisering en plek voor de
jassen. Een paneeldeur geeft toegang tot de living.

Living
De sfeervolle en trendy living heeft strak gestuukte wanden, op de vloer is een laminaat met brede vloerdelen gelegd en in 2023 zijn de kunststof kozijnen met HR++ glas en ventilatieroosters geplaatst. De ruimte wordt verwarmd door de heteluchtverwarming, dus geen stoffige radiatoren. Bij de eethoek naast de halfopen keuken zijn in 2023 ook kunststof openslaande deuren geplaatst met HR++ glas. Echt een fijne woonruimte voor uzelf, een gezin en om vrienden en kennissen te ontvangen.

Keuken
Halfopen keuken, compact maar heel praktisch ingericht! Er is een hoog natuurstenen werkblad met waterkering, 1½ spoelbak, kunststof draai/kiepraam met HR++ glas boven het werkblad, meerdere stopcontacten en veel laden, kastjes, een carrouselkastje en bovenkastje met bladverlichting. Daarnaast ook nog plek gemaakt voor de nodige inbouwapparatuur, zoals: een combimagnetron, separate oven, vaatwasser (2024), koel/vriescombinatie met een 4 laden vriezer, 6 pits gaskomfoor en een rvs-afzuigkap met de afvoer rechtstreeks naar buiten.

Bijkeuken
Vanuit de keuken geeft een paneeldeur met glas-in-lood toegang tot de geïsoleerde en best ruime bijkeuken met een groot raam en tuindeur, beiden in een houten kozijn met dubbel glas. U treft hier de wasmachine- en drogeraansluiting en er is veel ruimte voor voorraad, schoonmaakspullen of nog een 2e koelkast.

Tuin
Diepe tuin op het noordoosten en hoewel de tuinligging anders doet vermoeden heeft u in de zomer de hele dag de zon én het avondzonnetje. Om de ochtendzon buiten te houden is er een handmatig te bedienen zonwering bij het terras bij de openslaande deuren en achter in de tuin is nog een groot terras dus u kunt kiezen voor zon of schaduw.
De tuin is in 2024 onder handen genomen en in 2025 is er nog een nieuwe schutting geplaatst. Er zit een buitenkraan, overigens ook naast de voordeur, om het gras te sproeien, een poortdeur naar het achterom en dan is er nog een verrassend ruime houten berging met pannen zadeldak. De elektra is al aangelegd maar moet nog worden aangesloten en het is echt een verrassend ruime schuur.

1e Verdieping
Vanuit de living geeft een tussenhal toegang tot de trapopgang naar de slaapverdieping met gespoten wanden en de toiletruimte. Het toilet heeft licht betegelde wanden en dito vloer, een staande toiletpot, fonteintje en centraal afzuigsysteem.
Op de betonnen verdiepingsvloer is op de overloop laminaat in brede vloerdelen geplaatst wat is doorgelegd in de slaapkamers. De 3 slaapkamers hebben allen recht opgetrokken wanden, dubbel glas in de houten kozijnen en ook deze ruimtes worden verwarmd door de heteluchtverwarming.

Badkamer
Begin 2025 is deze moderne badkamer in gebruik genomen na een grondige metamorfose. De wanden en vloer zijn modern betegeld, het plafond is gestuukt, inbouwspots verlichten de badkamer en naast het centraal afzuigsysteem is er een uitzetraampje met dubbel glas voor de natuurlijke ventilatie.
U treft hier een wandcloset, inloopdouche met glazen wand, thermostaatkraan met hand- en regendouche en een drainafvoer. Het wastafelmeubel heeft 2 laden en een spiegel met tiptoetsen voor verlichting en verwarming dus geen beslagen spiegel na het douchen.

2e Verdieping
Open trap naar de 2e verdieping naar een ruime voorzolder waar zelfs ruimte is voor logees. De huidige bewoners hebben er een slaaphoek met een 2-persoons bed staan, er is een Velux dakraam met plissé/verduisteringsgordijn en een screen aan de buitenzijde. Op de betonnen verdiepingsvloer ligt linoleum, er is bergruimte achter de knieschotten en er is veel bergruimte bij het verlaagde plafond wat doorloopt in de ruimte boven de slaapkamer.
Op de voorzolder treffen we ook de heteluchtverwarming, de cv-installatie, het centraal afzuigsysteem en nog een 4-pans Velux raam met verduisteringsgordijn. Kortom…veel ruimte!
4e Slaapkamer – Ruime kamer waar een laminaatvloer is gelegd, in het houten plafond zitten inbouwspots, er is een vaste kastenwand met schuifdeuren en deze kamer heeft een groot Velux raam met plissé/verduisteringsgordijn, hor en screen aan de buitenzijde.

Bijzonderheden:
-	Schilderwerk buitenom bovenverdieping in 2021 voor het laatst geschilderd
-	Garantie op kunststof kozijnen begane grond en voordeur
-	Betonnen verdiepingsvloeren
-	Fijne woonomgeving
-	Veel faciliteiten in de directe omgeving

Kenmerken