Beschrijving

Het wonen op een ark is een belevenis ……. en dan ook nog eens op het mooiste plekje in de binnenhaven van Hoorn!
Deze verrassend ruime woonark met een tuin van maar liefst 224 m² op het zuidwesten heeft een sfeervolle living met een eikenhouten vloer, houtkachel, een schuifpui naar het terras aan de waterzijde en vanuit alle ramen zicht op de haven. Ook vanuit de keuken heeft u zicht op het water, en ook vanuit het kantoor, welke eveneens als slaapkamer in gebruik kan worden genomen. De badkamer bevindt zich op de begane grond. In de volledig betonnen bak/kelder is enorm veel bergruimte en op de slaapverdieping treft u een royale overloop wat ook als werkplek gebruikt kan worden en 2 royale slaapkamers, voorheen 3 kamers. De ark is altijd goed onderhouden en wellicht bent u de volgende trotse eigenaar van dit bijzondere object.

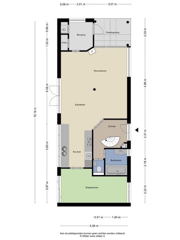
Entree
Vanaf de Slapershaven geeft de poort toegang tot het perceel met een looppad naar de overdekte zijentree van de ark. De deur is een zogenaamde boerderijdeur waarvan de bovenste helft open kan. Ideaal bij mooi weer! De hal heeft gestuukte wanden, dito plafond en op de vloer liggen sfeervolle boerentegeltjes. 
Achter de paneeldeuren bevinden zich de wasmachine- en drogeropstelling en een garderobekast.

Living
Royale living met veel lichtinval en vanuit alle ramen zicht op de gezellige binnenhaven aan de Karperkuil. Op de vloer ligt een eikenhouten vloer op een betonnen verdiepingsvloer, alle wanden en het plafond zijn gestuukt en inbouwspots verlichten de sfeervolle ruimte. De living wordt verwarmd door radiatoren, een convectorput bij de schuifpui en een houtkachel voor de koude winters. De schuifpui met zijramen tot aan de vloer geven toegang tot de omloop aan de waterzijde en vanaf uw bankstel heeft u het hele jaar zicht op de wisselende jaargetijden en op het water is altijd wat te zien.

Keuken
In de open keuken met 2 rechte opstellingen is de eikenhouten vloer afgewisseld met leistenen vloertegels. Vanaf het aanrecht met Belgisch hardstenen werkblad en 1½ spoelbak heeft u direct contact met uw huisgenoten in de living én zicht op de binnenhaven. Bij mooi weer kunnen daar 2 ramen open waarvan het hang- en sluitwerk recent is vervangen. Naast de nodige kastruimte en veel laden is er diverse inbouwapparatuur geplaatst, zoals: een breed 4 pits gaskomfoor, rvs-afzuigkap met de afvoer naar buiten, een hoog geplaatste vaatwasser, combimagnetron en de koel/vriescombinatie.

Kantoor/slaapkamer
Vanuit de keuken geven openslaande deuren toegang tot een multifunctionele ruimte die als kantoor, chill ruimte of slaapkamer gebruikt kan worden. De eikenhouten vloer is hier doorgelegd, de wanden zijn gestuukt, alsmede het plafond met inbouwspots. Aan de tuinzijde is een raampartij waar het raam open kan en een schuifpui geeft toegang tot het waterterras. De ruimte wordt verwarmd door een radiator.

Hal
Vanuit de living geven openslaande deuren toegang tot een ruime hal waar de oorspronkelijke voordeur met een zijraam zit en een wenteltrap naar de slaapverdieping. Ook in deze ruimte is de eikenhouten vloer doorgelegd en zijn de wanden en plafond gestuukt. 
Hier bevindt zich de toiletruimte met een wandcloset en een fonteintje en vanuit de hal kunt u middels een luik naar de betonnen kelder/bak met enorm veel bergruimte.

Badkamer begane grond
De badkamer op de begane grond heeft licht betegelde wanden, een leistenen vloer en een gestuukt plafond met inbouwspots. Er is een brede wastafel met plateau, ligbad met douche en thermostaatkraan. De buitenzijde van het bad is speels bekleed met hout en er is een open kast voor alle flessen en potjes.
Naast de mechanische afzuiger kan het raam open voor de natuurlijke ventilatie.

Kelder/bak
Vanuit de hal geeft een luik toegang tot de verrassend ruime bak, annex kelder. Zoveel ruimte verwacht u niet. Het is een betonnen bak met echt enorm veel bergruimte onder de hele ark. Een leuk weetje is dat het in 1963 is gebouwd in een nat dok, wat concreet inhoud dat het casco langer meegaat m.b.t. scheurvorming. De kwaliteit van de bak is goed!
Hier bevinden zich tevens de gloednieuwe pomp, de cv-installatie, mechanische afzuiger en de ontvochtiger.

1e Verdieping
Met een wenteltrap komt u op een enorm ruime overloop wat ook als werkruimte gebruikt kan worden. Ook op deze verdieping is een eikenhouten vloer gelegd op de houten verdiepingsvloer. Er is verrassend veel bergruimte achter de knieschotten aan beide zijden en het daglicht komt binnen via halfronde ramen.
1e Slaapkamer – voorheen waren hier 2 kamers en in 2024 is er 1 grote slaapkamer gerealiseerd. De deur zit er nog dus het kan indien nodig ook weer worden gesplitst. De wanden zijn gestuukt, zowel aan de tuinzijde als aan de waterzijde zijn dakkapellen geplaatst waarvan alle ramen open kunnen en radiatoren verwarmen de slaapkamer.
2e Slaapkamer met dakterras – royale kamer met 2 dakkapellen, een vaste kast en bergruimte achter de knieschotten en wat deze kamer als extraatje heeft ten opzichte van de andere slaapkamer is de toegang tot het grote dakterras met houten vlonders! Hoe lekker is het om voor het slapen gaan nog even met een wijntje te genieten van de sterrenhemel op een zomerse avond! In 2025 zijn de vlonders en de reling van het dakterras vervangen.

Tuin
De zonnige tuin van ca. 224 m² op het zuidwesten met een groot terras geeft zicht op het water en de gezellige haven. De tuin wordt gehuurd van de Gemeente en is onlosmakelijk verbonden aan de ligplaats van de ark.
De houten schuur is in 2018 geplaatst, voorzien van verlichting en stopcontacten en hier staat ook de pomp voor een irrigatiesysteem in de tuin. 
Aan de korte zijde van het waterterras kunt u een eigen boot aanleggen voor een vaste ligplaats en aan de lange zijde kunnen gasten aanleggen.
De tuinligging staat garant voor optimaal genieten tijdens de zomeravonden en het uitzicht is gewoonweg een levend schilderij!

Bijzonderheden:
-	Huur grond € 2.005,54 per jaar (prijspeil 2025) –  ca. 224 m² grond
-	Precario (liggeld) ca. €  650,- per jaar
-	Ligplek en de tuin zijn onlosmakelijk met elkaar verbonden 
-	Romp is van beton
-	Aangesloten op openbare riolering
-	Verankering is middels een ijzeren constructie tegen de wal
-	Gevelbekleding deels rabat en grotendeels afgewerkt met buitenstuc
-	In 2001/2002 is de benedenverdieping geheel verbouwd/gerenoveerd
-	2003 – nieuw dak geplaatst en nieuwe hardhouten kozijnen aangebracht
-	2006 – buitenzijde van de ark geheel gestuukt
-	2010 – bovenverdieping gemoderniseerd
-	2019 – gehele kade, tuin en schuur opnieuw aangelegd
-	2025 – nieuwe pomp geïnstalleerd 
-	2025 – vlonder en reling dakterras vernieuwd
-	Na keuring en uitgevoerde reparaties is in het taxatierapport van juli 2022 aangegeven dat zowel de opbouw als het casco nog een levensduur van minimaal 30 jaar heeft bij normaal woongebruik en voldoende onderhoud
-	Houten skeletbouw
-	Dak, vloer, wanden en glas geïsoleerd 
-	Energielabel C
-	Bouwkundig rapport van 2019 beschikbaar en in 2022 zijn de aangegeven adviezen uitgevoerd
-	Parkeervergunningsgebied 
-	Hang- en sluitwerk in 2024 vervangen

Kenmerken