Beschrijving
Tussenwoning met bijkeuken
Verzorgde tussenwoning met open keuken en separate bijkeuken. Op de eerste verdieping drie slaapkamers en de badkamer. Op zolder is nog eens een vierde (slaap)kamer. Royale onderhoudsarme tuin op het zuidoosten. De twee zonnepanelen (2025) op het tuinhuis reduceren de energieprijs een beetje. Er is recentelijk een mooi energielabel B afgegeven voor de woning. Alle woonlagen zijn van beton. Degelijk toch?
Wilt u deze fijne tussenwoning zien? Yvonne van der Jagt Makelaardij nodigt u graag uit voor een bezichtiging.
INDELING
Wees welkom!
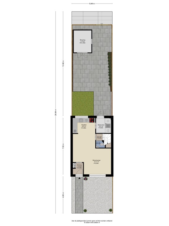
…. al lopend door de onderhoudsarme voortuin loopt u via de voordeur de hal in. Links is er ruimte voor uw jassen, tassen en schoenen. Verder de deuren naar de meterkast (glasvezelkabel/3 fasen-aansluiting) met moderne groepenkast en de woonkamer.
Licht en strak
Lichte nette living met een witte tegelvloer. Leuke knusse zithoek aan de voorzijde met uitzicht op de ruime straat. Halverwege heeft u mooi de ruimte om uw eethoek te plaatsen.
Tussenhal met toiletruimte
De toiletruimte vindt u in de tussenhal. De inrichting is al wat ouder, maar nog steeds erg netjes met een staande toiletpot, een fonteintje en een afzuigpunt voor de mechanische ventilatie.
Keuken en bijkeuken
Aan de achterzijde van de woning, met uitzicht op de tuin, is een nette hoekkeuken opgesteld. Kasten en laden in hoogglans zwart met softclose sluitingen, moderne handgrepen en een grijs kunststof werkblad. Prima combi! Boven het werkblad heeft u veel lichtinval door het brede raam. Inbouwapparatuur: elektrische kookplaat met afzuigkap, vaatwasser, combi-oven magnetron met stoom/grill (2023) en een koelkast.
De bijkeuken is een heerlijk verlengstuk van uw keuken. Hier kunt u meer witgoed kwijt en ook de wasmachine- en drogeraansluitingen zijn hier aanwezig.
Boven
De eerste verdieping bestaat uit drie slaapkamers en een badkamer. De grote slaapkamer aan de voorzijde is vergroot met een dakkapel. Op de vloer ligt een nette donkere laminaattegel. De beide andere kamers zijn wat kleiner van formaat, maar het zijn nog steeds mooie kamers met beide een groot Velux dakraam (HR++ beglazing 2025!) en een verduisterend rolgordijn. Het laminaat heeft in beide kamers een beukenprint.
Badkamer met Velux
Prima badkamer met ook hier een groot Velux dakraam (HR++ beglazing 2025!) voor lucht, licht en natuurlijke ventilatie. Ruime inloopdouche en verder een wastafel met onderkastje, planchet en spiegel en een radiator.
Van wie wordt deze etage?
De zolder (meegenomen als overig inpandige ruimte m2) is met een vaste trap bereikbaar. Hier heeft u nog een mooie vierde (slaap)kamer tot uw beschikking. De CV-ketel (2022) en de MV-box (2025) staan hier opgesteld. Het originele dakraampje kunt u wellicht vervangen voor een groter Velux dakraam of wellicht een dakkapel!
Buiten
De onderhoudsvrije achtertuin is zo’n 13 diep en ligt op het zonnige zuidoosten. In de smalle border aan de rechterkant kunt u nog wat groen planten. Achter in de tuin staat een houten tuinhuis. De tuin beschikt over een achterom met dubbele schuttingdeur. De schuttingen aan weerszijden zijn netjes en kunnen nog jaren mee!
Opmeer
Gemeente Opmeer bestaat uit acht dorpskernen, waaronder Opmeer. Voor dagelijkse boodschappen hoeft u niet ver: het centrum van Opmeer/Spanbroek beschikt over winkels zoals Hema, Action, Kruidvat, een bakker, slager en Albert Heijn. Ook een huisartsenpraktijk, apotheek, diverse sportclubs en twee basisscholen zijn aanwezig. Er is een goede busverbinding naar Hoorn, Schagen, Obdam en een snelle verbinding met de A7 richting Amsterdam.
Plattegronden
183591142_1633592_kamil_begane_grond_first_design_20260322_86bde4.jpg
183591142_1633592_kamil_begane_grond_tu_first_design_20260322_5d7818.jpg
183591142_1633592_kamil_eerste_verdiepi_first_design_20260322_ab3b22.jpg
183591142_1633592_kamil_tweede_verdiepi_first_design_20260322_f41709.jpg
183591142_1633592_kamil_berging_first_design_20260322_b445fd.jpg