| Prijs | € 398.000,- k.k. |
| Type object | Woonhuis, eengezinswoning, hoekwoning |
| Perceeloppervlakte | 161 m² |
| Woonoppervlakte | 115,3 m² |
| Aanvaarding | In overleg |
| Status | Verkocht |
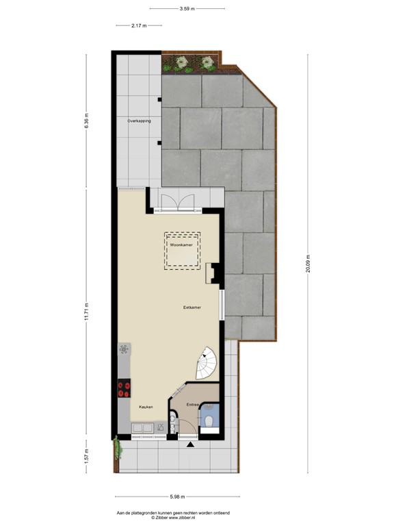
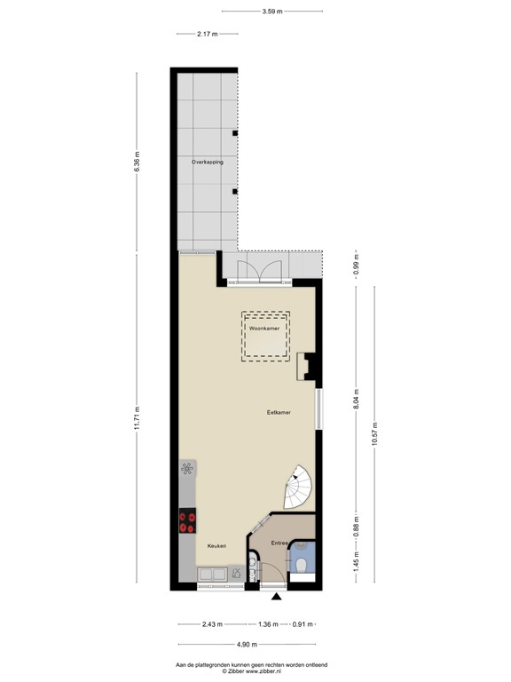
Zeer goed onderhouden, uitgebouwde hoekwoning met dakkapel De verrassing van deze woning is toch vooral de begane grond. De woonkamer is aan de achterzijde twee en een halve meter uitgebouwd, waardoor er een prachtig mooie living is ontstaan. Tevens is de zolder vergroot met een kamerbrede dakkapel en is in de achtertuin een mooie overkapping gebouwd. Omdat het een hoekwoning betreft heeft u een extra stuk grond naast de woning en kunt u ook buitenom de achtertuin bereiken. Op de eerste verdieping drie slaapkamers en op zolder nog eens een riante slaapkamer. Kortom, zeer leuke stek om te wonen! Heeft u interesse in deze woning? Yvonne van der Jagt Makelaardij nodigt u graag uit voor een bezichtiging. INDELING Entree Ruime entree met deuren naar de moderne toiletruimte (met witte wandtegels, donkerbruin gemêleerde vloertegels , fonteintje en wandcloset), meterkast en woonkamer. In de open opbergkast is meer dan voldoende ruimte voor uw jassen en schoenen. Fijn is ook de kunststof voordeur met drie-punts veiligheidssluiting. Uitgebouwde living (2010/geheid) Geweldige living met giga oppervlakte! Aan de achterzijde heeft u meer dan voldoende ruimte om een grote zithoek te plaatsen. De kunststof openslaande tuindeuren met houten shutters staan erg sjiek! Op de vloer ligt een speels gelegde natuurstenen vloer in diverse formaten, voorzien van vloerverwarming (gehele begane grond!). De uitbouw is voorzien van een grote lichtkoepel, dat zorgt voor lekker veel natuurlijke lichtinval. Ook het brede zijraam (voordeel van een hoekwoning!) geeft de woonkamer een extra leuke sfeer. Het plafond is netjes gestuukt en voorzien van een sierlijst en inbouw ledverlichting. De houthaard staat garant voor gezellig warme winteravonden. Halverwege de woonkamer kunt u de allergrootste eettafel kwijt die u maar wenst! Heerlijk toch! Open keuken met landelijk tintje Grote open hoekkeuken aan de voorzijde van de woning met mooie houten shutters in het raam aan de voorzijde. De houten frontjes van de keuken zijn in hoogglans gelakt. Het kunststof zwarte werkblad is stijlvol onderbroken door een M-system zespits gasfornuis met oven. Verder is de keuken voorzien van een afzuigkap verwerkt in een kleine schouw, een koelkast met vriesgedeelte (3 laden) en een vaatwasser. Achter- en zijtuin De heerlijke achtertuin op het westen is 7,5 x 7,5 meter en langs de woning heeft u ook nog eens een strook grond van 3 meter breed. Het geheel is netjes bestraat en op de erfafscheiding staat een keurige gemetselde tuinmuur (vergund/geheid). De gezellige overkapping (2024) staat garant voor menig gezellig uurtje buiten, is gebouwd van Douglas hout en er zijn diverse stroompunten aangebracht. En als u in de tuin staat kunt u zien dat de gevels er zeer netjes uit zien. Ze zijn in 2015 gestraald, gevoegd en geïmpregneerd. Op de gevel is een buitenkraan gemonteerd, altijd handig. Aan de achterzijde staan in de tuin drie grote leibomen, die zorgen voor een fijne privacy. Drie slaapkamers op de eerste verdieping Via de spiltrap bereikt u de keurige eerste verdieping. Deze is in 2025 voorzien van nieuw laminaat, doorgelegd in alle drie de slaapkamers en de overloop. De deur naar de eerste verdieping heeft leuke glas-in-lood-ramen. Alle ramen in de slaapkamers zijn in 2024 voorzien van HR++ beglazing. Kortom, inrichten en slapen maar! Badkamer De zwart/wit betegelde badkamer is compleet ingericht met ligbad en hand/regendouche, een wandcloset en wastafel met meubel en spiegelkast. In het plafond zijn led spots aangebracht. Zowel mechanische als natuurlijke ventilatie is mogelijk in deze ruimte. Tweede verdieping met kleine bergzolder De verdieping is bereikbaar via een vaste trap en biedt toegang tot een mega grote zolderkamer met een kunststof/trespa dakkapel (draaikiep ramen/HR++ glas) aan de achterzijde over de volledige breedte. Ook hier ligt een keurige laminaatvloer. Op deze verdieping vindt u de CV-opstelling (geïnstalleerd in 2019), MV-box (2023) en de aansluiting voor uw wasmachine. In de nok van de woning is nog een toegangsluik naar een kleine ‘wegzet’. Ook heeft u nog opbergruimte achter de knieschotten onder de dakkapel. Hoorn/Zwaag De woning is omringd door alle voorzieningen, zoals Winkelcentrum De Korenbloem en Winkelcentrum De Huesmolen, diverse speeltuinen, sporthal De Opgang, een fitnesscentrum en Park Risdammerhout. Een bushalte is op loopafstand van de woning. Op de fiets bent u binnen 10 minuten bij het NS-treinstation, het centrum van Hoorn en het ziekenhuis en binnen 5 minuten rijdt u op de A7 richting Amsterdam. Hoorn, stad met vele sporen vanuit de VOC-tijd, zeer welvarend tijdens de Gouden Eeuw. De historie leeft voort in de vele monumentale gebouwen, bijzondere architectuur en musea vol historische schatten. Hoorn, stad aan het Markermeer, gezellige havens, de binnenstad met vele winkels en restaurants, schouwburg Het Park en het nieuwe Stadsstrand. U hoeft zich nooit meer te vervelen.
| Vraagprijs | € 398.000,- k.k. |
| Inrichting | Niet gestoffeerd |
| Inrichting | Niet gemeubileerd |
| Status | Verkocht |
| Aanvaarding | In overleg |
| Aangeboden sinds | Vrijdag 16 mei 2025 |
| Laatste wijziging | Zaterdag 12 juli 2025 |
| Type object | Woonhuis, eengezinswoning, hoekwoning |
| Soort bouw | Bestaande bouw |
| Bouwperiode | 1982 |
| Dakbedekking | Bitumen Dakpannen |
| Type dak | Zadeldak |
| Keurmerken | Energie prestatie advies |
| Isolatievormen | Dakisolatie HR-glas Muurisolatie Spouwmuren Vloerisolatie Volledig geïsoleerd |
| Perceeloppervlakte | 161 m² |
| Woonoppervlakte | 115,3 m² |
| Inhoud | 408 m³ |
| Oppervlakte gebouwgebonden buitenruimte | 17,3 m² |
| Aantal bouwlagen | 3 |
| Aantal kamers | 5 (waarvan 4 slaapkamers) |
| Aantal badkamers | 1 (en 1 apart toilet) |
| Ligging | Aan rustige weg Beschutte ligging Dichtbij openbaar vervoer In woonwijk Nabij school Nabij snelweg |
| Type | Achtertuin |
| Hoofdtuin | Ja |
| Oriëntering | West |
| Heeft een achterom | Ja |
| Staat | Goed onderhouden |
| Energielabel | A |
| CV ketel | Remeha Avanta 35c CW5 |
| Warmtebron | Gas |
| Bouwjaar | 2018 |
| Combiketel | Ja |
| Eigendom | Eigendom |
| Warm water | CV-ketel |
| Verwarmingssysteem | Centrale verwarming Houtkachel Vloerverwarming (gedeeltelijk) |
| Ventilatie methode | Mechanische ventilatie |
| Keukenvoorzieningen | Inbouwapparatuur |
| Badkamervoorzieningen | Douche Ligbad Toilet Wastafel Wastafelmeubel |
| Heeft kabel-tv | Ja |
| Heeft een rookkanaal | Ja |
| Glasvezelaansluiting aanwezig | Ja |
| Tuin aanwezig | Ja |
| Beschikt over een internetverbinding | Ja |
| Heeft ventilatie | Ja |
| Kadastrale aanduiding | Hoorn I 10847 |
| Perceeloppervlakte | 47 m² |
| Omvang | Geheel perceel |
| Eigendomsituatie | Eigen grond |
| Kadastrale aanduiding | Hoorn I 9173 |
| Perceeloppervlakte | 114 m² |
| Omvang | Geheel perceel |
| Eigendomsituatie | Eigen grond |