Beschrijving

Bieden vanaf € 375.000, - k.k.

Hartstikke leuke hoekwoning met een B-label, zonnig gelegen tuin op het zuidoosten, nette keuken met diverse inbouwapparatuur, een trendy badkamer met dakkapel, separaat 2e toilet op de slaapverdieping en 4 ruime slaapkamers. Geweldig leuke locatie in oud-Zwaag aan een rustig hofje met parkeerplekken voor de deur en zicht op Gemeentegroen. Als dit je interesse heeft geprikkeld zien we je graag bij een bezichtiging!

Entree
Parkeren kan in het hofje voor de woning en achter de voordeur is de hal met een garderobehoek, radiator, gespoten wanden en een lichte laminaatvloer.
Een moderne paneeldeur met melkglas geeft toegang tot de living.

Living
De zithoek is straatgericht en je kan leuk wegkijken op een Gemeenteplantsoentje. Er is veel lichtinval vanwege de grote raampartij en het zijraam kan open wat altijd prettig is om goed te kunnen ventileren. De lichte laminaatvloer is vanuit de hal doorgelegd in de living, er zijn gespoten wanden en een strak gestuukt plafond met een platte plint. In de praktische en diepe trapkast met verlichting en stopcontact achter een “stoere” schuifdeur met rail is volop bergruimte voor stofzuiger, schoonmaakspullen en voorraad.
De eethoek naast de keuken heeft zicht op de zonnig gelegen tuin met ook weer een groot raam en de tuindeur.

Keuken
De keuken is in een hoek geplaatst in lichte kleurstelling met veel bergruimte in de laden, kastjes en bovenkastjes. Boven het werkblad met 1½ spoelbak zijn inbouwspots in een koof geplaatst voor de bladverlichting en het raam naast de tuindeur kan open zodat er goed geventileerd kan worden.
Er is diverse inbouwapparatuur geplaatst, zoals: een koel/vriescombinatie (2020), 4 pits gaskomfoor, afzuigkap (2021) met de afvoer naar buiten, combi-oven/magnetron (2021) en een vaatwasser.

Tuin
Zonnig gelegen tuin op het zuidoosten, grotendeels bestraat, te bereiken via het achterom én via de zijsteeg met recht van overpad. Er is een handmatig te bedienen zonnescherm, vanwege de ligging beslist geen overbodige luxe…! 
Stel je eens voor…de dag beginnen met je eerste kopje koffie in de zon. Dan kan je dag toch al niet meer stuk! De fiets en tuinspullen kan je plaatsen in de stenen berging met een betonnen vloer, verlichting, stopcontact en fijn lichtinval vanwege een zijraam. Kortom, een fijne tuin voor de zonliefhebber!

1e Verdieping
Een moderne paneeldeur met melkglas geeft toegang tot de tussenhal met de trapopgang en het toilet met geheel betegelde wanden, een wandcloset, hoekfonteintje en centraal afzuigsysteem.
De trap is in 2021 bekleed, de wanden in de trapopgang zijn gespoten en op de overloop ligt pvc op de betonnen verdiepingsvloer.
De separate toiletruimte in 2021 gerealiseerd met modern betegelde wanden en een trendy betegelde achterwand boven het wandcloset. Inbouwspots verlichten het toilet.
1e Slaapkamer voorzijde – recht opgetrokken wanden met stijlvol behang, laminaatvloer en dubbel glas in houten kozijn.
2e Slaapkamer voorzijde – royale kamer met recht opgetrokken wanden, stijlvol behangen, laminaatvloer, groot raam met dubbel glas en het zijraam kan open. Fijn gegeven is dat je geen inkijk hebt van overburen en in 2021 is er een nieuwe radiator geplaatst.
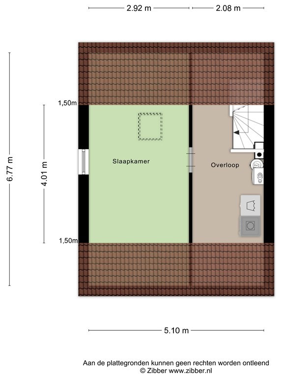
3e Slaapkamer achterzijde – ruime kamer met een dakkapel waar 2 ramen open kunnen, ook in deze kamer ligt een laminaatvloer en de wanden zijn behangen.

Badkamer
In 2021 is de badkamer vergroot en geïsoleerd door het verlengen van de dakkapel en compleet vernieuwd. De wanden zijn trendy betegeld en de vloer heeft vloerverwarming. Het raam kan open voor de natuurlijke ventilatie en er is een centraal afzuigsysteem, inbouwspots verlichten de badkamer en verder treffen we een, wastafelmeubel met natuurstenen wasbak, 2 kranen en 2 laden, een spiegel, designradiator en een ruime inloopdouche met speels betegelde achterwand, een thermostaatkraan met hand- en regendouche, koofje voor de shampooflessen en een hoekputje.

2e Verdieping
Open trapopgang met beklede treden naar de écht royale voorzolder waar zeil op de betonnen verdiepingsvloer is gelegd. We treffen hier de cv-installatie, het centraal afzuigsysteem, beiden in 2021 nieuw geplaatst, de wasmachine en drogeraansluiting, veel bergruimte en hoog plafond.
4e Slaapkamer – nog een ruime kamer met een Velux dakraam voorzien van een verduisteringsgordijn en een zijraam met enkel glas. De rechte wanden zijn behangen, er ligt vloerbedekking, en een radiator verwarmd de kamer. 
Er is overdraagbare vergunning met omgevingsvergunning én een offerte voor het plaatsen van een dakkapel aan de voorzijde, alsmede een dakraam aan de voorzijde bij de voorzolder.

Bijzonderheden:
-	Betonnen verdiepingsvloeren
-	Steenworp afstand van lagere school, voortgezet onderwijs en sportfaciliteiten
-	Recht van overpad zij- en achtersteeg
-	2021 zijn de dakgoten aan de voorzijde samen met de buren vernieuwd
-	Fijne en rustige woonomgeving
-  Er is een mogelijkheid dat diverse meubelen overgenomen kunnen worden

Kenmerken