Beschrijving

Geschakelde en fors uitgebouwde woning met een bijzondere bouwstijl, speelse ruimtes en mogelijkheid tot levensloopbestendig wonen! De afgelopen jaren is de woning gemoderniseerd en is door de huidige bewoners met name de isolatie onder de loep genomen wat heeft geresulteerd in dit mooie label. Daarnaast is wonen in 'oud' Zwaag met veel voorzieningen op een steenworp afstand ook wel een pré. We nemen u even mee door de woning….. royale living met aangesloten eetkamer, keuken in de uitbouw, ook extra aangebouwd, het kantoor annex slaapkamer met aansluitend een ruime inpandige berging met douche. Op de verdieping 2 slaapkamers, de badkamer en nog een flinke wegzetzolder. De tuin krijgt ook een pluim, niet alleen de zonnige ligging is aantrekkelijk maar ook de sfeervolle en royale overkapping. Kortom, een fijne en perfect onderhouden woning!

Entree
Achter de voordeur komt u in de hal met de garderobehoek en lichte vloertegels. De tegelvloer is doorgelegd in de royale toiletruimte met ook licht betegelde wanden, wandcloset, urinoir, fonteintje, LED inbouwspots en mechanische afzuiging.
Wat u hier niet verwacht maar wel erg prettig, is een wasruimte achter de klapdeur. De wasruimte heeft licht betegelde wanden en de wasmachine- en drogeraansluiting. 

Living en eetkamer
Royale en hele speelse living met enorm veel lichtinval en een spanplafond wat overgaat in een hoog plafond bij de zithoek. De lichte vloertegels zijn doorgelegd in de living en de eetkamer en de ruimte wordt naast radiatoren heel prettig verwarmd door een pellet kachel. De meeste wanden zijn behangen. Er is een breed kunststof kozijn aan de tuinzijde met HR++ glas, openslaande deuren met plissé horren en 2 brede zijramen met ventilatieroosters. Vanwege de zonnige tuinligging is er ook een elektrisch te bedienen zonnescherm geplaatst.
Ook in de ruime eetkamer is de lichte tegelvloer doorgelegd, het plafond is gestuukt en vanuit de eetkamer heeft u toegang tot het kantoor.

Keuken
In 2020 is er een nieuwe keuken in lichte kleurstelling geplaatst in de uitbouw met enorm veel lichtinval rondom. Er zit een spanplafond met LED verlichting en extra inbouwspots boven de kookplaat. Naast veel werkblad met lichte wandtegels en een brede spoelbak is er ook veel kastruimte, laden en de diverse inbouwapparatuur, zoals: koel/vriescombinatie, groot formaat combimagnetron, inductie kookplaat met geïntegreerde afzuiger, een Quooker en een vaatwasser. Er kunnen 2 ramen open en vanuit de keuken heeft u direct contact met de overige gezinsleden in de living en de eetkamer maar ook leuk zicht op de tuin en de straat. Er is hier een airco geplaatst en op de vloer is een lichte laminaatvloer gelegd.

Kantoor/hobbyruimte of slaapkamer
Wat een fijne ruimte! Niet alleen als kantoor- of hobbyruimte te gebruiken maar u kunt het ook als een slaapkamer gaan gebruiken waarmee de woning levensloopbestendig is. In het hardhouten kozijn met HR++ glas kan een raam open en in het vaste raam zit een ventilatierooster. Op de geïsoleerde vloer is laminaat gelegd en er is veel bergruimte in de vaste kastenwand met schuifdeuren. Vanuit deze kamer heeft u toegang tot de inpandige berging.

Inpandige berging
Ook deze berging is verrassend ruim met hoog plafond en zeil over de geïsoleerde betonnen vloer, er zit een tuindeur met dubbel glas, toegang tot het kruipluik bij de tuindeur en de omvormer van de 9 zonnepanelen.
Verrassend in deze berging met spouwmuur is een douchecabine met thermostaatkraan wat gunstig is als u beneden wil slapen. De dakbedekking van het kantoor en de berging is ca. 5 jaar geleden vervangen.

Tuin
Wat een heerlijke ruime, vrijwel geheel bestrate en zonnig gelegen tuin! De ligging is zuidoost en er zijn meerdere hoekjes waar u in de zon kunt zitten of juist de schaduw wil opzoeken. Zo is er ook een fijne overkapping met verlichting, stopcontacten en een heater. In de houten schuttingen zijn de poorten naar de steeg aan de voor- en achterzijde, er is nog deels open schuurtje en een buitenkraan.

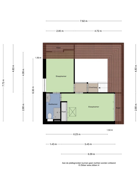
1e Verdieping
Vanuit de living heeft een open trap toegang tot een plateau met deur naar een tussenhal en toegang tot de slaapkamers.
Op de betonnen verdiepingsvloer is laminaat met brede vloerdelen gelegd.
1e Slaapkamer voorzijde – leuke afmeting en speelse kamer met HR++ glas in een kunststof kozijn, beide draai/kiepramen met top/down plisségordijnen hebben een zomer- en winterstand en er zijn horren. De wanden zijn behangen en er zit nog extra bergruimte achter het knieschot. De kamer heeft direct toegang tot de badkamer.
2e Slaapkamer achterzijde – ruime kamer met een brede dakkapel voorzien van HR++ glas in een kunststof kozijn met 2 draai/kiepramen met hor, ventilatieroosteer in het vaste raam en top/down plisségordijnen. Er zit bergruimte achter de knieschotten, een vaste kastenwand met spiegel schuifdeuren, de wanden zijn behangen en er is een deels verhoogd plafond. Ook deze kamer heeft rechtstreeks toegang tot de badkamer. Gewoon ook weer even iets anders dan standaard wat overigens voor de gehele woning van toepassing is!

Badkamer
De moderne badkamer met licht betegelde wanden is in 2020 deels aangepast. Er is een ruime inloopdouche gerealiseerd met thermostaatkraan, glazen wand en er is een laminaatvloer, speciaal voor vochtige ruimtes, gelegd. Verder treffen we hier een 2e wandcloset, wastafelmeubel met laden en wandkast en inbouwspots. Een designradiator verwarmd de badkamer, er is een mechanische afzuiger en inbouwspots in het gestuukte plafond. Beide slaapkamers hebben direct toegang tot de badkamer.

 Zolderverdieping
Via een vlizotrap vanuit de 2e slaapkamer heeft u toegang tot de zolderverdieping met een houten verdiepingsvloer. Ook weer zo’n verrassende ruimte! Boven aan de trap is een voorzolder met een Velux dakraam, de kast blijft achter en er kan zelfs nog een bureautje worden geplaatst. Dan geeft een deur toegang tot de bergzolder waar verrassend veel weggezet kan worden en hier is ook de cv installatie geplaatst.

Bijzonderheden:
-	Gevelisolatie -  2022
-	Vloerisolatie - 2022 
-	Platte daken - 2018
-	Schilderwerk buitenom – groene delen 2023
-	HR++ glas in 2023 geplaatst
-	9 panelen in 2022 in eigendom geplaatst met nog garantie
-	Rookkanaal in 2025 geveegd
-	Vrijwel overal LED verlichting 
-	Overal paneeldeuren
-	Geïsoleerd leistenen dak 
-	Perfect onderhouden
-	Steenworp afstand van winkels
-	Fijne woonomgeving

Kenmerken