Beschrijving
Résidence Eikstaete, een oase van rust in hartje Hoorn
Als u aankomt, voelt u meteen de oase van rust die de Résidence Eikstaete uitstraalt. Een unieke combinatie van rustig en mooi wonen, op een weidse en groene plek, nabij het centrum van Hoorn!
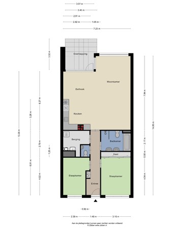
Het appartement met 101 m2 woonoppervlakte bevindt zich op de begane grond. Riante living met open keuken, badkamer, separaat gastentoilet, twee slaapkamers en een berging/technische ruimte/wasruimte. U heeft een tuin(tje) op het zuidoosten. In de parkeerkelder heeft u de beschikking over een eigen berging en een eigen parkeerplaats voor uw auto.
Natuurlijk wilt u dit comfortabele appartement ervaren!
Yvonne van der Jagt Makelaardij nodigt u graag uit voor een rondleiding.
Aankomst
Als u aankomt bij de résidence rijdt u met de fiets of auto direct de parkeerkelder in. De helling is niet al te steil, dus ook met de fiets is deze goed begaanbaar. U kunt de parkeerkelder met de fiets ook bereiken vanaf de andere kant, alwaar de bergingen zijn. Grote, ruime, verlichte en overzichtelijke parkeerkelder. Binnendoor kunt u met de lift of trap naar de verdiepingen. Komt u via de hoofdingang, dan loopt u langs de brievenbussen en het bellentableau met video intercom de nette entree van het gebouw in.
Entree appartement
Via de voordeur loopt u de lange hal in met aan weerszijden in totaal zeven deuren naar alle ruimtes. Alle binnendeuren zijn van het merk Svedex; stijlvolle, afgelakte paneeldeuren, die niet geschilderd hoeven te worden. We gaan eerst rechtdoor, naar de living…
Living
Hier komt u thuis! Comfortabele living op het zuidoosten. Over de gehele breedte van het appartement heeft u ramen, zodat u maximale lichtinval heeft en…een mooi uitzicht over de tuin van de résidence. De deur naar de tuin nodigt erg uit om naar buiten te gaan! Bij deze deur kunt u een grote eettafel plaatsen met zeker zes stoelen! In het gehele appartement ligt een nette, neutrale laminaatvloer.
Open keuken
De moderne hoekkeuken is in 2016 vernieuwd en ziet er erg netjes uit. Strakke crèmewitte onder- en bovenkasten en laden en op de wand een hoogglans tegeltje in landelijke stijl, een tintje donkerder. U beschikt over de volgende AEG en Bosch inbouwapparatuur: koelvries-combinatie, vaatwasser (2024 nog vernieuwd), combi oven-magnetron en een vierpits inductiekookplaat met afzuigkap. Het geheel is afgewerkt met een donker natuurstenen werkblad.
Twee slaapkamers
Aan de voorzijde, de koele kant van het appartement, bevinden zich de twee slaapkamers, beide van prima formaat. De grootste slaapkamer is voorzien van een inbouw(schuif)kast met rookglas-spiegeldeuren.
Badkamer en separate toiletruimte
Zeer complete en tijdloze badkamer met dubbele wastafel, dubbel planchet en twee spiegels, een ligbad, toilet, en een inloopdouche voorzien van een glazen deur. Geheel betegeld tot aan het plafond, met op de wand een neutrale witte tegel, en op de vloer een donkergrijze tint. De separate gasten-toiletruimte heeft dezelfde wand- en vloertegels als de badkamer.
Berging/Technische ruimte/Wasruimte
Multifunctionele ruimte waarin uw wasmachine en droger een plek kan krijgen, de CV-ketel(2017), MV-box en WTW-unit opgesteld is, waarna er nog steeds voldoende ruimte is voor diverse spullen op de grond en langs de wand in stellingkasten.
Tuin
In de zonnige tuin kunt u heerlijk zitten met een groot gezelschap, want inclusief de overkapping heeft de tuin links een lengte van 5.95 meter en rechts 4.18 meter, over de volle breedte van het appartement, 7.31 meter. Zoals al eerder gezegd, mooi uitzicht over de tuin van de résidence! Het terras is volledig betegeld met links en rechts op de hoeken een leuke houten plantenbak. Op het rechter gedeelte is op de gevel een elektrisch bedienbaar zonnescherm gemonteerd, ideaal tijdens (te) zomerse dagen!
Berging en Parkeerplaats voor uw auto
In de parkeerkelder heeft u de beschikking over een eigen berging van 2.10 x 2.15 meter en een eigen parkeerplaats voor uw auto, of misschien wel twee. Want u beschikt over één van de grootste plaatsen, namelijk 7.46 x 3.02 meter! Er kunnen dus twee kleine auto’s staan!
VvE
De VvE Résidence Eikstaete wordt in eigen beheer bestuurd. Mogelijk wordt het beheer binnenkort uit handen gegeven aan een professionele partij. Er zijn 51 appartementen in het gebouw. Aan maandelijkse servicekosten betaalt u een bedrag van € 166,89. De VvE wordt op serieuze wijze bestuurd en de financiën zijn gezond. Er zijn diverse commissies in het leven geroepen, zoals de Technische commissie, Kunst commissie, Tuin commissie, AED commissie, Activiteiten commissie en de Interne burenhulp. U kunt er gerust uit opmaken dat er hier fijn wordt geleefd en er naar elkaar wordt omgekeken.
Hoorn
U woont in het centrum van Hoorn, stad aan het Markermeer, gezellige havens, de binnenstad met vele winkels en restaurants, schouwburg Het Park en het nieuwe Stadsstrand met strandrestaurant Reuring. Een stad met vele sporen vanuit de VOC-tijd, zeer welvarend tijdens de Gouden Eeuw. De rijke historie is zichtbaar in de monumentale panden, bijzondere architectuur en musea vol verhalen. U woont op drie minuten fietsen van het NS-treinstation en binnen enkele minuten rijdt u op de A7 richting Amsterdam.