Beschrijving
Uitgebouwde 2/1 kapper met verlengde garage, achtertuin op het westen en aan doorgaand vaarwater!
Op Bovendeks 15, in de populaire woonwijk Kadijken, kunt u de nieuwe eigenaar worden van een uitgebouwde 2/1 kap woning (niet geschakeld!) aan doorgaand vaarwater, met maar liefst 637 m3 inhoud en 154 m2 woonoppervlakte. Deze zeer royale woning met verlengde garage staat op een perceel van 300 m2, is in het jaar 2004 gebouwd, opgeleverd in maart 2005, heeft een recent afgegeven energielabel A en is geheel voorzien van isolerende HR++ beglazing! Meteen bij de nieuwbouw is de woning aan de achterzijde vergroot met een prachtige aanbouw en de verlengde garage. De eerste verdieping heeft een drietal grote slaapkamers, alle met rechte wanden en uiteraard een badkamer. Op de tweede verdieping is een mooie vierde en eventueel vijfde slaapkamer mogelijk. Gezien de nokhoogte is zelfs een bergzolder te realiseren.
Wilt u deze 2/1 kap-woning eens bekijken? Yvonne van der Jagt Makelaardij nodigt u graag uit voor een bezichtiging.
EEN RONDLEIDING
De straat in…
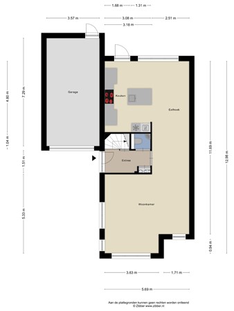
Als u aan komt rijden ervaart u de rust en de ruimte in deze mooie wijk. Via een fijne brede straat rijdt u gerieflijk het keurig bestrate oprijpad op. Er is parkeergelegenheid voor vier auto’s op het oprijpad. Via de zij-entree komt u in de hal (voordeur met driepuntsluiting) met de toiletruimte (wandcloset en hoekfonteintje), meterkast en trapopgang naar de eerste verdieping.
Woonkamer van formaat!
De woonkamer is straatgericht en heeft een mooie erker aan de voorzijde met rechte hoeken, waardoor extra veel daglicht uw woonkamer binnenstroomt. Op de gehele begane grond ligt een laminaatvloer. Deze ruimte is bijna vierkant, waardoor u de zithoek op diverse manieren kunt inrichten.
Oneindig tafelen
Misschien verblijft u in deze tuingerichte leefkeuken nog wel liever dan in de woonkamer. Wat een geweldige ruimte is dit! Het uitzicht op uw tuin is hier maximaal zichtbaar. Een eettafel met zes stoelen kunt u hier met gemak kwijt! Tijdloze, luxe keuken met spoeleiland. Crème witte kasten, vitrinekasten en laden, Labrador Blue Pearl granieten werkblad van 4 cm dik en achterwand. Diverse inbouwapparatuur: extra brede vijfpits elektrische kookplaat (2019), extra brede afzuigkap (2019), vaatwasser (2019), koelvriescombi (2019), oven en een oven/grill-magnetron (2023). Het spoeleiland, met onderkasten aan weerszijden, is voorzien van een granieten extra grote en brede spoelbak (65 cm) met spoelkraan.
Verlengde garage (7.29 x 3.57 m)
Verwarmde ruimte waarvan de betonvloer voorzien is van een coating. Goed verlicht met vier TL-bakken. Aan de voorzijde te betreden via een kanteldeur en aan de achterzijde via een loopdeur. Kortom, een garage waar je echt blij van wordt! Buitenom, lopend langs de garage, is een extra brede poortdeur gemaakt. Zowel aan de voorzijde als de achterzijde van de woning is een buitenkraan gemonteerd op de gevel.
Achtertuin van 10 x 11 op west
Grote onderhoudsarme achtertuin op het zonnige westen van zo’n 10 x 11 meter. Keurig en speels diagonaal, geheel bestraat met betonnen tuintegels. Achterin de tuin zit u op het terras altijd in de zon. Wilt u schaduw, dan zit u lekker beschut tegen het huis aan, onder het elektrisch bedienbare zonnescherm (met verlichting). De schuttingen en de steiger zijn van hardhout. De hardhouten steiger is zwevend aangelegd over de volle breedte van de tuin en voorzien van een zwemtrap. Aan de verankerde rvs-paal of aan de bolders kunt u uw boot veilig aanleggen. Verder een geweldige kapschuur van Douglas hout van 5 x 4 meter, voorzien van aluminium dakbedekking en diverse stroompunten. De houtkachel en BBQ-ton blijven voor u achter!
Drie grote slaapkamers op de 1e
Via de lichte ruime overloop bereikt u de drie slaapkamers en de badkamer op de eerste verdieping. Alle kamers hebben rechte wanden. De slaapkamer rechts voor, heeft een grote kledingkast die voor u achterblijft.
Marmeren badkamer
Ruime badkamer met echte marmeren tegels op de wanden en vloer. Er staat een grote stoomdouche/badcabine, waarvan niet alle functies meer werken. Strak glazen wastafelmeubel met dubbele wasbak, een chroom design handdoekradiator en een wandcloset.
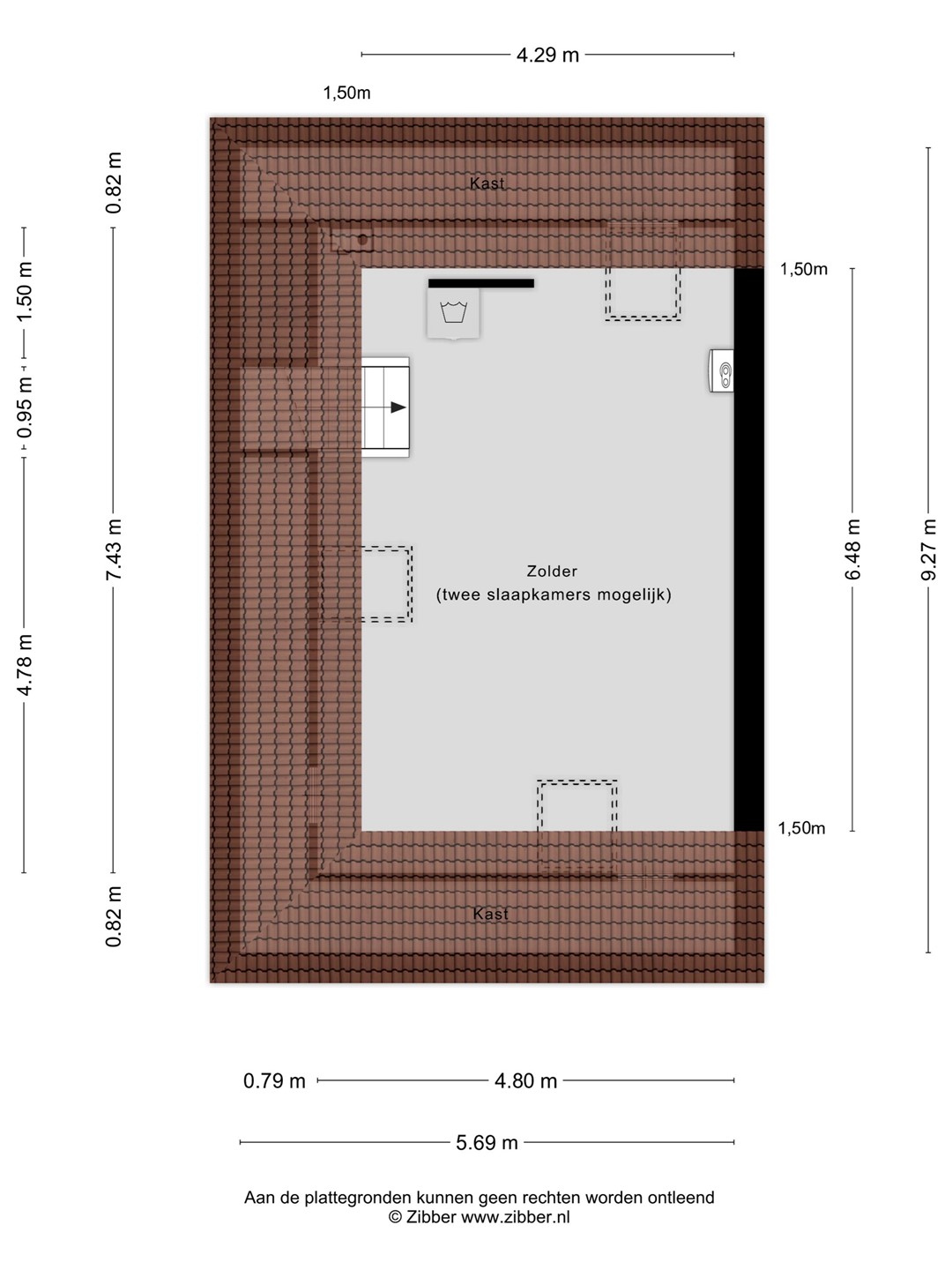
Eén a twee slaapkamers op de 2e
Wat een mega zolder! Hier heeft u de mogelijkheid om gemakkelijk een vierde en eventueel vijfde slaapkamer te realiseren. Ook kunt u hier de wasmachine en droger opstellen. Het mechanische ventilatiesysteem en de cv-ketel (2024) staan hier opgesteld. Er zijn drie grote dakramen geplaatst, voorzien van zonwering. Deze verdieping is (uiteraard!) bereikbaar via een vaste trap.
Enkhuizen
Enkhuizen heeft alles! Alle in deze alinea genoemde voorzieningen zijn op loop/fietsafstand te bereiken. Hoe fijn is dat! Er zijn meerdere leuke speeltuinen in de woonwijk, maar de leukste en grootste is op twee minuten loopafstand van de woning, namelijk skate-speeleiland Kadijker Arena! Verder de gezellige binnenstad met winkels en horeca, attractiepark Sprookjeswonderland, recreatiezwembad Enkhuizerzand, het strand, het Zuiderzeemuseum en diverse jachthavens. Er zijn meerdere basisscholen, een middelbaar voortgezet onderwijs-school (RSG) en tal van sportvoorzieningen in de directe nabijheid van de woning. Er is een NS-treinstation en diverse busverbindingen. Binnen een paar autominuten rijdt u op de dijk naar Lelystad en binnen 1 minuut op de N505 richting de A7.