Beschrijving
Geweldige vrijstaande woning op een zeer ruim bemeten perceel (890 m2), gelegen op een rustige locatie aan de rand van Hoogkarspel in de wijk Reigersborg-Zuid. Het woonoppervlakte beslaat maar liefst 143,70 m2! Verlengde inpandige garage met bergzolder met een oppervlakte van 29,80 m2. Vier goed bemeten slaapkamers, maar kunnen er met gemak vijf worden. Prachtig aangelegde, waaiervormige, breed uitlopende achtertuin op het zuidwesten aan doorgaand vaarwater. En, natuurlijk, een grote living met een open keuken. Met 20 zonnepanelen op het dak en een energielabel A is dit een prachtige woonkans!
Heeft u interesse in deze woning? Yvonne van der Jagt Makelaardij nodigt u graag uit voor een bezichtiging.
INDELING
Parkeren op eigen terrein
Het laatste deel van de Binckhorst is gebouwd in een ruimtelijke U-vorm met in het midden veel groen en een speelveld voor de kleintjes. Dat komt nog eens lekker thuis! Uitstappen op uw eigen parkeerplaats (plek voor 2 auto’s) en via de overkapte entree naar binnen. In de hal vier deuren naar de meterkast (met glasvezelaansluiting, 3 fasen 25A, 9 groepen/uitbreiding in 2017 vanwege zonnepanelen), living, toiletruimte (met wandcloset, fonteintje en radiator) en verlengde grote inpandige garage. Verder, de trap naar de eerste verdieping.
Balzaal
Bij binnenkomst via de glas-in-lood binnendeur in de living lonkt meteen de fraaie achtertuin die over de volle breedte (5,69 m) te zien is! Vanwege de brede schuifpui en de twee grote zijramen heeft deze ruimte een maximale natuurlijke lichtinval. Geweldige ruimte waarbij iedere opstelling van zithoek een eethoek denkbaar is! Natuurlijk is er ook de onmisbare ruime trapkast met een aantal planken voor uw spullen.
Open keuken in U-vorm
Aan de voorzijde van de woning is de U-vormige open keuken gesitueerd. De keuken is al op leeftijd maar nog prima te gebruiken, ook omdat de apparatuur in de afgelopen jaren vernieuwd is. U beschikt over een koelvriescombinatie (2020), inductiekookplaat van 80cm breed (2015), afzuigkap (2015), oven (2015), combi magnetron/grill (2015), plintboiler van 10 ltr (2018) en een vaatwasser (2015). In de kasten en laden is meer dan voldoende ruimte voor uw keukenspullen. U zit riant aan de eettafel, grenzend aan de keuken, met zes tot acht personen.
Het buitenleven aan het doorgaande vaarwater
In de zuidwestelijk gelegen, privacyvolle, diepe en breed uitwaaierende achtertuin (gemiddeld 30 m diep en 15 m breed bij de woning tot 25 m breed bij het vaarwater) is veel te ontdekken. Zo staan er diverse fruitbomen (kers, appel, pruim, peer), maar ook een esdoorn, hazelaar en laurier. In het lommerrijke, achterste deel van de tuin staat heel romantisch een bankje en kan er door kinderen heerlijk gespeeld en hutten gebouwd worden. Langs de diverse pergola’s klimmen mooie bloeiers. Vanaf uw terras is er altijd genoeg te zien en, de tuin blijft ook in de winter groen, wat zorgt voor maximale privacy! Halverwege de zijtuin wordt de tuin afgesloten middels een poortdeur. U kunt de tuin dus ook buitenom bereiken. De houten berging voor twee containers, en een tweede houten en een aluminium tuinhuisje blijven voor u achter, ideaal voor al uw tuinspullen. Ook de houten overkapping naast de woning, nu bestemd voor fietsen, blijft staan. Op de gevel is een buitenkraan gemonteerd en een zonnescherm. De besproeiingspomp met professioneel beregeningsysteem blijft ook voor u achter waardoor u op efficiënte wijze zowel de achter- als de voortuin vanuit uw luie stoel kunt beregenen. Ook de robuuste driedubbele schommel met klauterrek (2020) blijft.
Verlengde inpandige garage met bergzolder
U wordt blij van een garage met deze afmeting, namelijk 8,10 x 2,87 m. Aan de voorzijde te betreden via de elektrisch bedienbare, geïsoleerde garagedeur (2023/met afstandsbediening), aan de achterzijde via een loopdeur naar de tuin en natuurlijk binnendoor via de brandwerende zelfsluitende deur. De muren zijn geïsoleerd en de ruimte kan worden verwarmd met vier radiatoren met een eigen thermostaat. Bovendien heeft u de beschikking over een bergzolder over de gehele lengte van de garage en deze is te bereiken via een vlizotrap.
Twee (met gemak drie) slaapkamers
De eerste verdieping heeft twee slaapkamers en een badkamer. De met recht te noemen master slaapkamer (25 m2) aan de achterzijde kunt u met gemak opsplitsen in twee slaapkamers. Aan de voorzijde is de tweede slaapkamer. Alle ramen zijn voorzien van handmatig te bedienen rolluiken waarvan een aantal uitgevoerd met ventilatieroosters.
Badkamer
U zou het niet zeggen, maar de badkamer is nog uit het bouwjaar. Ziet er echt nog zeer netjes uit! Er is een groot ligbad, een inloopdouche met glazen douchewand en regen- en handdouche, een wandcloset, radiator en een wastafel met brede spiegelwand. Vanwege het kunststof draaikiepraam (2023) kunt u deze ruimte goed ventileren, maar een mechanisch ventilatiesysteem is natuurlijk ook aanwezig.
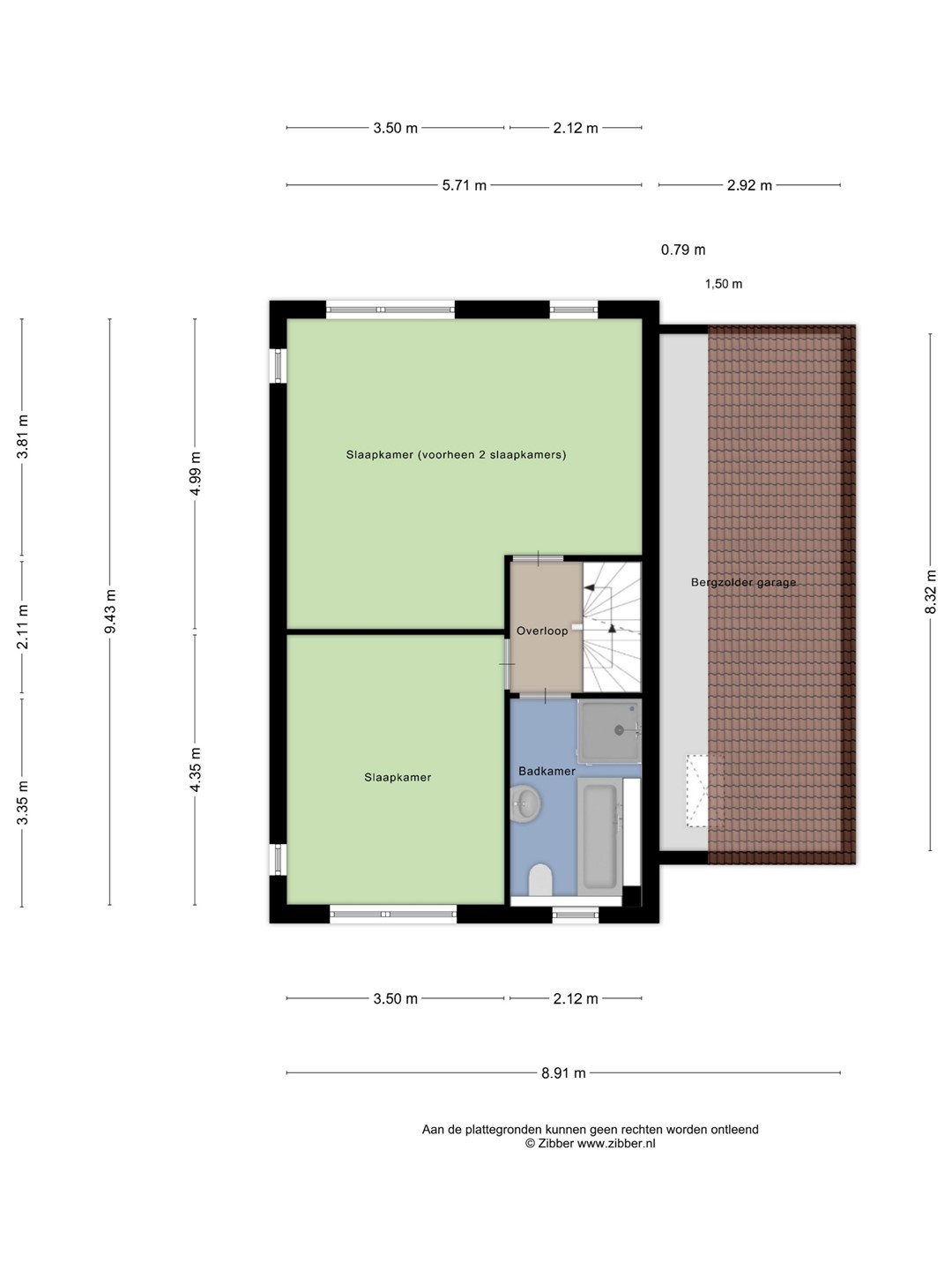
Twee slaapkamers op de tweede verdieping
Dit verwacht u niet! Mega-verdieping met hoge nok en een lessenaarsdak met dakkapel (2015/kunststof) op de slaapkamer aan de voorzijde. Aan de achterzijde slaapkamer twee. Ertussen een grote overloop met de CV-opstelling (2018) welke altijd keurig onderhouden is geweest, de aansluitingen voor wasmachine en droger, de omvormer van de zonnepanelen en in de nok nog een bergzolder in de vorm van een vliering met opbergkasten. Beide kamers worden verwarmd (voorste slaapkamer heeft eigen thermostaat) en zijn voorzien van een knieschot met daarachter veel bergruimte. Alle kozijnen op deze verdieping zijn in 2023 vervangen door kunststof (Schüco) en voorzien van draaikiepramen met inzethorren en HR++ isolatieglas.
Zonnepanelen
Op het zuidoostelijke dak liggen 20 zonnepanelen (eigendom) die in de afgelopen drie jaar gemiddeld ruim 4700 kWh per jaar hebben opgewekt en dus een aanzienlijke besparing opleveren op uw energiekosten!
Dakgoten en schilderwerk buitenzijde
In 2023 zijn de dakgoten aan beide zijden van de woning vervangen door titanium-zinken maatgoten en bekleed met kunststof. Tevens is toen alle schilderwerk aan de buitenzijde gedaan.
Hoogkarspel
Het West-Friese dorp Hoogkarspel is een van de dorpen in de gemeente Drechterland, heeft ongeveer 8000 inwoners en is van alle gemakken voorzien. Overdekt Winkelcentrum Reigerspassage voorziet in uw dagelijkse benodigdheden. Er is een voetbalclub, een tennisvereniging en openluchtzwembad Het Streekbad. Ook zijn er meerdere basisscholen. Hoogkarspel heeft een NS-treinstation met ieder half uur een trein naar zowel Enkhuizen als Amsterdam. Ook de uitvalswegen naar Hoorn, Lelystad, Alkmaar en Amsterdam zijn snel met de auto te bereiken. Via de nieuwe N307 rijdt u in ongeveer een half uur naar de ring A10.