Beschrijving
Uitgebouwde, instapklare, energiezuinige, moderne tussenwoning met 5 slaapkamers en 2 dakkapellen!
Als u aan komt rijden…
... ervaart u meteen een oase van rust en ruimte. Royale straat, voldoende en brede parkeerplekken en naast de woning een prachtige lange groenstrook met twee moderne speeltuintjes. Geen water in de nabijheid (er ligt doorgaand vaarwater rondom de wijk), geen doorgaand verkeer! Kortom, een fijne, veilige wijk waar gezinnen zich helemaal thuis voelen.
Wilt u deze unieke woonkans benutten? Yvonne van der Jagt Makelaardij nodigt u graag uit voor een bezichtiging.
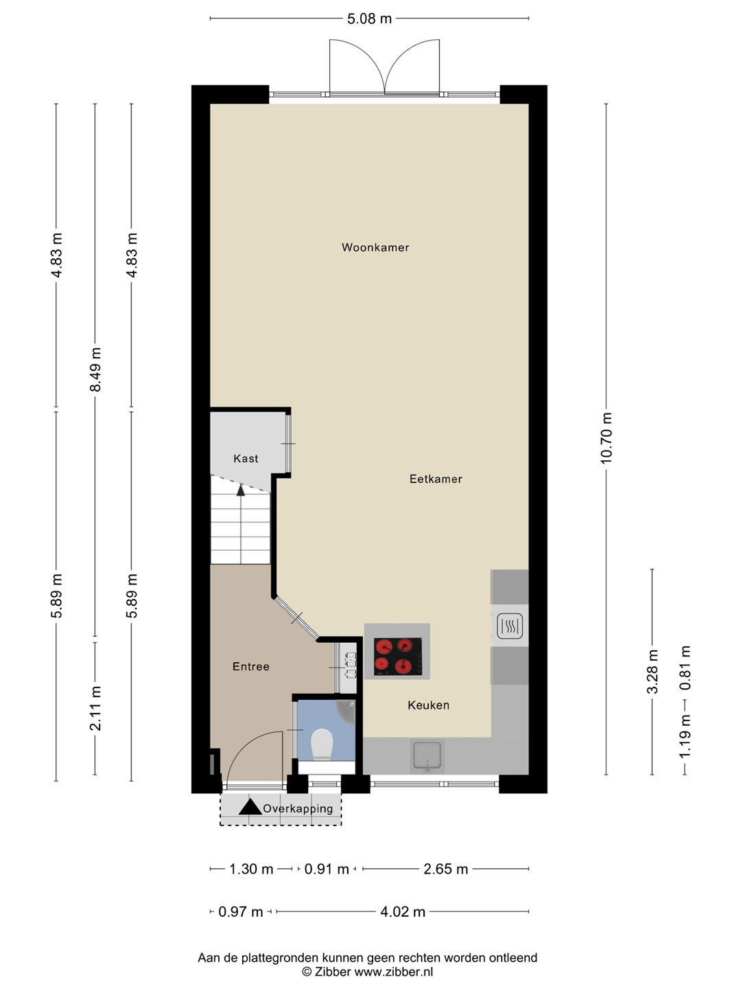
EEN RONDLEIDING…..
In de voortuin ingericht met hortensia’s en twee bescheiden boompjes zult u zeker, zo nu en dan een kopje koffie drinken in het ochtendzonnetje. Prettige hal, voordeur met driepuntsluiting. Op de wand is voldoende ruimte voor planken en haakjes voor uw jassen en tassen. Grote inloopmat, ideaal voor de ‘vieze schoenen’. Rechts de meterkast (met glasvezelaansluiting) en de toiletruimte, volledig betegeld met diagonaal gelegde zwarte vloertegels en witte hoogglans wandtegels. Verder een net wandcloset en een hoekfonteintje. Plezierig ook, een valraampje voor daglicht en frisse lucht. Rechtdoor de trap naar boven, lekker fris wit geschilderd, en de deur met glas naar de living.
Verliefd….
…. als u de woonkamer in komt. Beauty van een ruimte! Vijf meter breed en totaal bijna elf meter lang vanwege de 2,5 meter uitbouw aan de achterzijde. Aan de tuinzijde mooie openslaande tuindeuren en symmetrisch ernaast nog twee grote ramen. Op de gehele begane grond vloer ligt een robuuste eikenhouten vloer. Spullen kunt u opbergen in de onmisbare ruime trapkast.
Stijlvol….
…. is de keuken (Keukenstudio De Streek/2023) die aan de straatzijde in een L-vorm is opgesteld. U kookt op het kookschiereiland aan de andere zijde. Voldoende zijdegrijze kasten en laden voor uw spullen en een houten plank aan de wand voor uw mooiste items. Op de wand verticale smalle hoogglans vergrijsd witte tegels en de rest van de wanden zijn gestuct. Het TopCore keukenblad heeft een warmgrijze kleur met een bescheiden frisse marmerprint, erg mooie combi! Luxe inbouwapparatuur: inductiekookplaat met centraal plasma afzuigsysteem, vaatwasser, Quooker kraan, koel-vriescombi en een stoom-hetelucht-grill-oven. Het brede raam boven het werkblad zorgt voor licht en uitzicht!
Drie slaapkamers op de eerste
Op deze verdieping beschikt u over drie fijne slaapkamers. Rechte wanden, maximaal gebruik van de ruimte!
Efficiënt ingedeeld….
….is de badkamer. Kleurstelling en tegels zijn gelijk aan die in de toiletruimte. Indeling: een ruime inloopdouche met hand- en regendouche en een glazen deur, een wastafel met twee laden, dubbele Grohe kraan en wandkast (2023) en een wandcloset. Erboven hangt een grote ronde anti-condens spiegel met ledverlichting (2023). Op de designradiator kunnen uw handdoeken drogen (2023). Fijn is ook het raam waardoor u, naast mechanisch, ook natuurlijk kunt ventileren.
Twee (slaap)kamers op de tweede
Via een vaste trap loopt u naar een verrassend sfeervolle en grote tweede verdieping! Zo ziet u ze zelden! Twee (slaap)kamers, twee dakkapellen met kunststof kozijnen en elektrisch bedienbare rolluiken. Op de gehele verdiepingsvloer wit gelakte houten vloerdelen. Op de overloop staat de witgoedopstelling, CV-opstelling en MV-box verdekt opgesteld in een grote inpandige kast welke ook bereikbaar is via de slaapkamer. De wanden en het plafond zijn keurig glad gestuct en voorzien van dimbare halogeen inbouwspots! De slaapkamer aan de voorzijde heeft een stijlvolle inpandige kast met schuifdeuren die voor u achterblijft. De slaapkamer aan de achterzijde wordt nu gebruikt als luxe walk in closet die ook voor u achterblijft. Leuk detail en efficiënt in de ruimte is de vintage schuifdeur. Beide kamers hebben vintage uitgevoerde knieschotten die te benutten zijn als bergruimte.
Buiten in Mediterraanse sfeer
De trots van de eigenaren! Niets aan doen, gewoon meteen genieten van de bijzondere sfeer in deze kleurrijke en groene tuin. U geniet hier van de middag- en avondzon. Het terras is vernieuwd in 2022 en bestaat uit grijsgemêleerde terrastegels. Twee geweldige zits! Eén is op maat gemaakt op, jawel, een bloembak, onder de groenblijvende jasmijn, een hoekbank die nu wordt gecombineerd met een speelse ronde tafel en aan de andere zijde stoelen. Avondeten wordt hier een feestje. Wilt u iets meer schaduw dan geniet u onder de pergola met weelderig groeiende druif op een luie loungebank. Een buitenkraan en elektra voor tuinverlichting is aanwezig, als ook een berging en een achterom.
Zonnepanelen (2022)
Op het zuidoostelijke dak liggen zes in eigendom zijnde zonnepanelen (JA Solar - Full Black)
Hoogkarspel
Het West-Friese dorp Hoogkarspel is een van de dorpen in de gemeente Drechterland, heeft ongeveer 8000 inwoners en is van alle gemakken voorzien. Overdekt Winkelcentrum Reigerspassage voorziet in uw dagelijkse benodigdheden. Er is een voetbalclub, een tennisvereniging, openluchtzwembad Het Streekbad, kinderboerderij Skik, Stichting De Schooltuinen, een voetbalkooi, een natuurspeeltuin en het park met Heemtuin De Reigersbek. Ook zijn er meerdere basisscholen (waarvan twee op 3 minuten loopafstand). Hoogkarspel heeft een NS-treinstation. En ook de uitvalswegen naar Hoorn, Lelystad, Alkmaar en Amsterdam zijn snel met de auto te bereiken. Via de nieuwe N307 rijdt u in ongeveer een half uur naar de ring A10.