Beschrijving
Bieden vanaf € 350.000,- k.k.
Ruime hoekwoning met parkeergelegenheid op eigen terrein en diepe tuin met stenen berging. De woning telt 3 ruime slaapkamers, de royale badkamer en de keuken zijn functioneel maar wel gedateerd zodat u deze naar eigen smaak kan inrichten. Er zijn veel mogelijkheden met deze woning die qua ligging echt top ligt in een rustige woonomgeving. Achter de woning is een speelveld, speeltuintje en scholen, winkelcentrum en het stadsstrand liggen op een steenworp afstand. Ook de binnenstad, het station en de A7 zijn dichtbij.
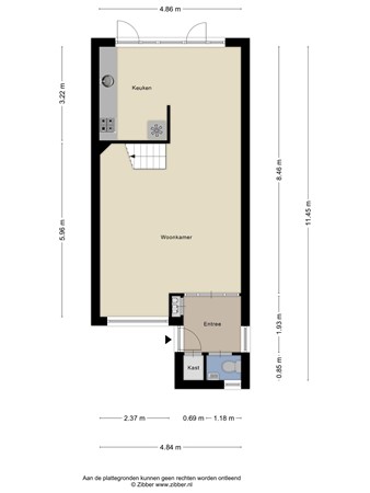
Entree
Parkeren kan op eigen terrein, achter de voordeur met roederamen stapt u een ruime hal in met bovenraam, radiator, systeemplafond, licht plavuizen vloer met een sierrand en een garderobekast. Het toilet heeft retro wandtegels, een staand toilet, fonteintje en een klapraam voor de natuurlijke ventilatie. Een deur met roederamen geeft toegang tot de living.
Living
Ruime living waar een laminaatvloer is gelegd, de wanden zijn deels behangen, afgewisseld met steenstrips. De grote raampartij aan de straatzijde heeft dubbel glas in een kunststof kozijn, tegen het plafond zijn sierbalken geplaatst en er is een brede doorloop naar de eethoek. De trapopgang bevind zich in de living en is boven af te sluiten met een deur zodat warmte en geluid beneden blijft. Bij de eethoek zit een tuindeur met dubbel glas en hordeur en nog een raampartij waardoor u fijn lichtinval heeft.
Keuken
De eenvoudige maar functionele keuken is in een rechte opstelling geplaatst met veel kastruimte, laden, bovenkastjes met bladverlichting en diverse inbouwapparatuur, zoals: een 4 pits gaskomfoor, rvs afzuigkap met koolstoffilter en een losse vaatwasser. Bij de keuken zit ook een tuindeur met dubbel glas en hor.
Tuin
De diepe en geheel bestrate tuin ligt op het noordoosten en hoewel de ligging anders doet vermoeden kunt u hier ’s zomers vrijwel de hele dag in de zon zitten. Er is een achterom met vlak achter de woning een speelveld en speeltuintje en geen inkijk van directe achterburen. Uw fietsen en tuinspullen kunt u kwijt in de stenen berging waar een kunststof deur in een kunststof kozijn is geplaatst en er is prettig lichtinval middels een zijraam en een klapraampje. Er is elektra, verlichting en een vide waar ook nog veel bergruimte is.
1e Verdieping
Boven aan de trapopgang van de 1e verdieping is een klein halletje met een deur naar de overloop zodat de slaapverdieping afgesloten kan worden. Op de overloop ligt laminaat op een betonnen verdiepingsvloer.
1e Slaapkamer voorzijde – hele ruime kamer met recht opgetrokken en behangen wanden, vloerbedekking, enkel glas in de raampartijen en een deur, ook met enkel glas naar het platje, voor onderhoud, waarvan in 2024 de bitumen dakbedekking is vervangen.
2e Slaapkamer achterzijde – prima afmeting slaapkamer waar de laminaatvloer vanuit de overloop is doorgelegd, het zijraam met enkel glas is slecht en moet vervangen en er zit een dakraam met voorzetraam. Vanuit deze kamer is er toegang tot de ruimte achter de badkamer, eventueel voor bergruimte maar deze ruimte kan ook bij de badkamer worden betrokken.
Badkamer
Een hele ruime badkamer met retro wandtegels, een 2e toilet, ligbad met mengkraan, wastafel, radiator en een natuurlijk ventilatierooster. Door een dakraam of dakkapel te plaatsen én de ruimte achter het knieschot bij de badkamer te betrekken kunt u hier een prachtige badkamer realiseren. Er zit ook een wasmachineaansluiting maar die kan ook naar de bergruimte op de 2e verdieping.
2e Verdieping
De trapopgang naar de zolderverdieping heeft vloerbedekking en geeft toegang tot de voorzolder met hoog plafond, er zit een raam met enkel glas boven de trapopgang dus ook hier prettig lichtinval. Op de betonnen verdiepingsvloer ligt zeil. In de bergruimte vinden we de cv installatie met vulkraan en naast veel bergruimte kunt u hier ook de wasmachine en droger plaatsen. Hier zit ook de afvoer van de natuurlijke ventilatie van de badkamer.
3e Slaapkamer – een ruime kamer waar een laminaatvloer is gelegd, er zit een kozijn met enkel glas en 1 raam kan open. Vanuit deze kamer heeft u vrij uitzicht over het speelveld en geen direct inkijk van achterburen.
Bijzonderheden:
- De woning wordt verkocht met een niet bewoners clausule
- Een woning met legio mogelijkheden
- De meeste kozijnen zijn vanuit de bouw met enkel glas en het advies is om deze te vervangen
- Mogelijkheid om zonnepanelen op het dak aan de voorzijde te plaatsen
- Fijne en rustige woonomgeving