Beschrijving
Maisonnette met fenomenaal uitzicht en luxe keuken!
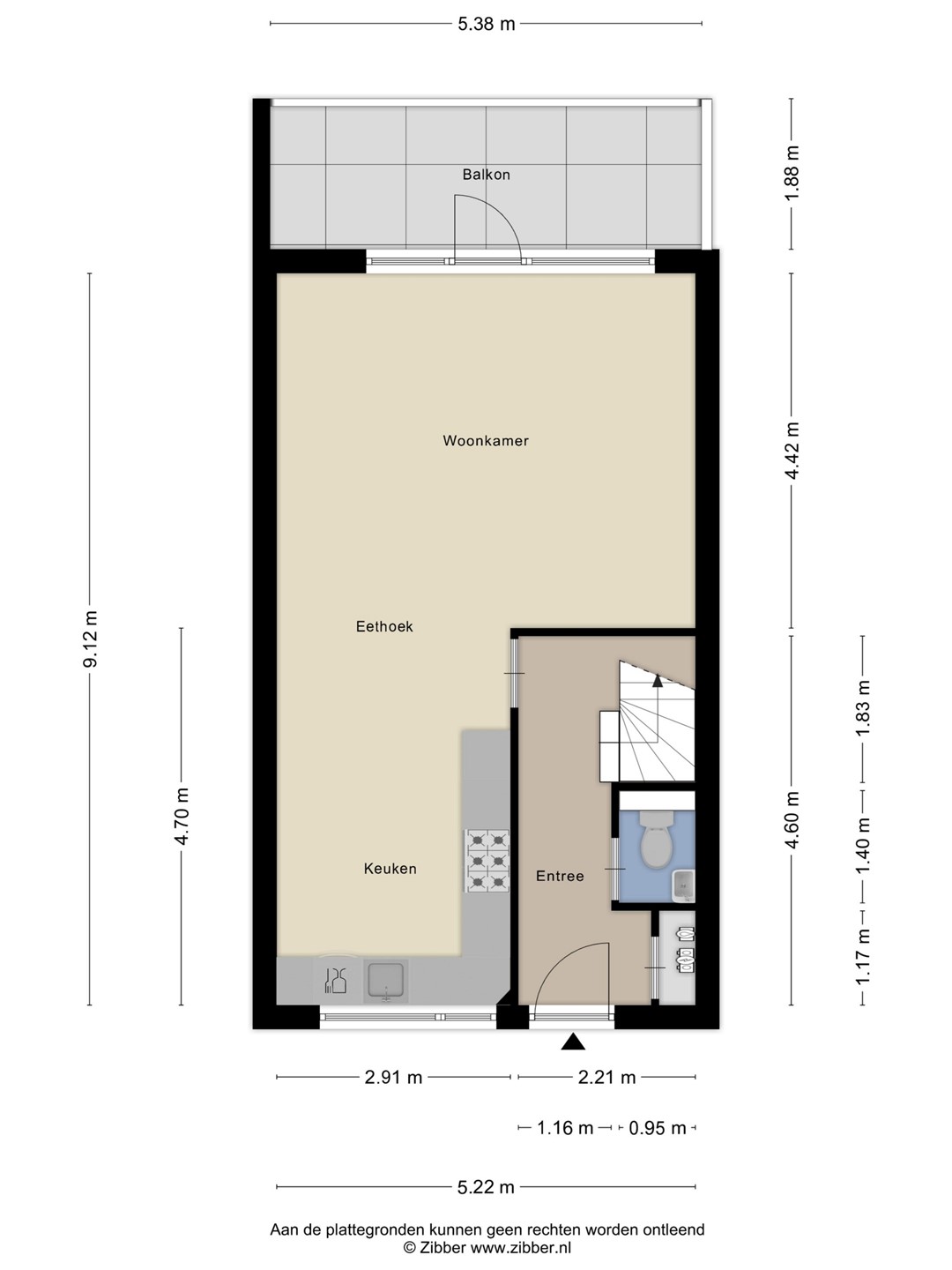
Dit superleuke drie-kamerappartement (91,8 m2 woonoppervlakte en zeer recent energielabel B!) op de tweede en derde verdieping van het gebouw is een mooie buitenkans! Vanuit de woonkamer en het balkon (9,8 m2) heeft u prachtig uitzicht over het Hoornse Hop (kustlijn) en het Markermeer.
De woning ligt min of meer naast Winkelcentrum ‘Grote Beer’, een park en scholen. U loopt binnen twee minuten op het grootste stadsstrand van Nederland en na vijf minuten fietsen loopt u door de binnenstad van Hoorn en bereikt u het NS-station. De A7 richting Amsterdam is ook binnen handbereik.
INDELING
Appartementencomplex / berging begane grond
Bij aankomst kunt u via het trappenhuis of met de lift naar de tweede etage. Op de begane grond beschikt u over een aparte eigen berging.
Entree appartement
U komt binnen in een ruime hal met voldoende plek voor uw jassen en schoenen. Deuren naar de toiletruimte (met fonteintje), meterkast (2020) en woonkamer. Ook de trap naar boven bevindt zich hier.
Lichte living en luxe keuken
Wat een leuke ruimte! Groter dan u zou denken, veel lichtinval voor en achter en een spectaculair uitzicht! Alle kozijnen aan de achterzijde zijn vervangen door kunststof kozijnen met triple beglazing (oktober 2023). Donkere sfeervolle laminaatvloer die mooi matcht met de lichte meubels en keuken.
De zeer complete, luxe, open keuken (2019) heeft off-white soft close kasten en laden. Grote hoekopstelling met een breed raam boven het kunststof werkblad. Alle gewenste inbouwapparatuur is aanwezig, te beginnen met de eye-catcher, een Boretti zespits gasfornuis, afzuigkap (A+) met koolstoffilter, koelvriescombinatie (A+), vaatwasser (A++) en een kokendwaterkraan. De koof met inbouwspots en de moderne designradiator maken het geheel mooi af.
10 m2 balkon
Het royale balkon op het zuidwesten is nagenoeg 10 m² groot en zoals al gezegd: het uitzicht is spectaculair! U kijkt ver uit over het Markermeer! Aan de gevel hangt een elektrisch te bedienen zonnescherm. Vanwege de verspringende gevel met de buren zit u hier nagenoeg altijd uit de wind!
Twee slaapkamers
Boven heeft u twee royale slaapkamers tot uw beschikking. Vanwege de rechte wanden en de hoge plafonds zijn dit echt twee fijne kamers! Mocht u extra bergruimte nodig hebben, dan zou u in beide kamers een bergzolder kunnen maken.
Badkamer
De badkamer is al op leeftijd maar altijd goed onderhouden. Prima ruimte met een ligbad met handdouche en een wastafel met meubel (2023).
Inpandige berging
Grote inpandige berging, die u zelfs zou kunnen inrichten als extra kamer of kantoor. Hier zijn ook de aansluitingen voor de wasmachine en droger. Verder hangt hier de Cv-ketel (eigendom) en de MV-box (2022). Deze ruimte is voorzien van een dakraam.
Servicekosten
Het VvE-beheer is professioneel uitbesteed aan Zeeman de Vries Vastgoedmanagers. U betaalt per maand (2026) € 230,96 servicekosten. Dit is inclusief diverse verzekeringen, waaronder een opstalverzekering en glasverzekering, groot onderhoud aan het gebouw en schoonmaak van de algemene ruimtes.