Beschrijving
Deze tussenwoning is rustig gelegen aan een mooie brede straat in de ruim opgezette woonwijk Wheermolen. Nabij heeft u de keuze uit twee winkelcentra, Overwhere en Wormerplein. Het gezellige centrum, de Koemarkt, van Purmerend is een kleine 10 minuten fietsen. Een basisschool, kinderopvang, voortgezet onderwijs en een sportcomplex bevinden zich op loop/fietsafstand van de woning. Het NS-station Purmerend Overwhere is 5 tot 10 minuten fietsen. Met de auto bereikt u in enkele minuten de A7, richting Amsterdam, Zaandam en Hoorn.
Alle kozijnen en buitendeuren van deze mooie brede woning (5.87 meter) zijn uitgevoerd in dubbel glas en kunststof (Knipping/1991) en functioneren nog prima. Op de tweede verdieping is aan de achterzijde een dakkapel geplaatst. U beschikt in totaal over vier ruim bemeten slaapkamers. De CVketel is in 2022 vernieuwd, dus daar heeft u voorlopig geen omkijken naar. Met een diepe achtertuin van bijna 13 meter op het zuidwesten is de zonligging perfect!
De woning is toe aan modernisering en enige verduurzaming. Maar daarna woont u hier zeker weten jarenlang op een fijne plek in een prettige woning en omgeving!
Wilt u de woning bekijken? Yvonne van der Jagt Makelaardij nodigt u graag uit voor een bezichtiging.
INDELING
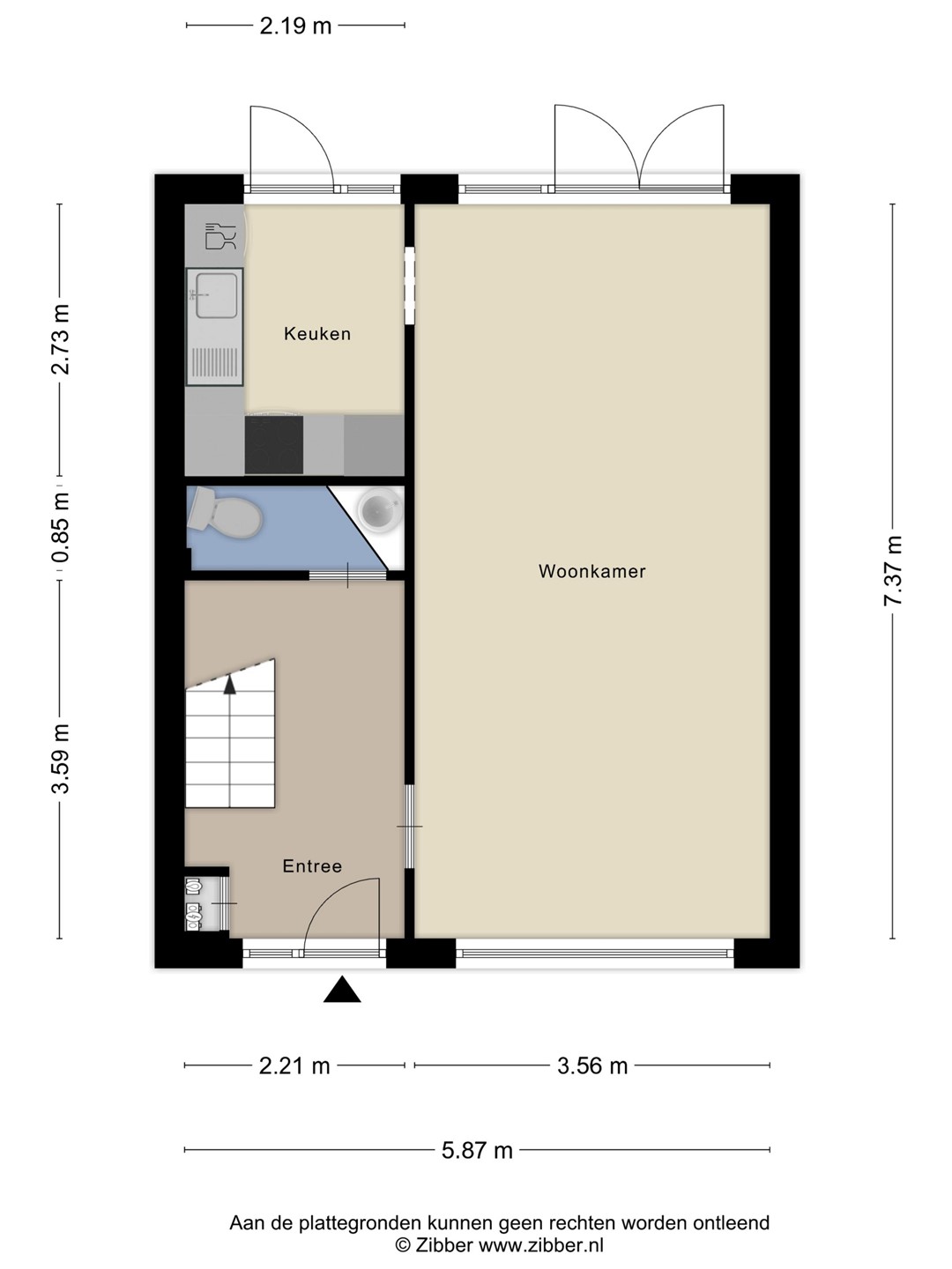
Entree
Fijne ruime hal met deuren naar de grote! toiletruimte met fonteintje en kast, meterkast en woonkamer. De trap naar de eerste verdieping vindt u ook in de hal.
Woonkamer
De doorzon-woonkamer is lekker lang (7,37 meter) en licht, vanwege de kamerbrede ramen aan de voor- en achterzijde. Aan de achterzijde loopt u via de kunststof schuifpui de achtertuin in. Op de Artist Impression ziet u hoe leuk het is om de wand tussen de woonkamer en de nu halfopen keuken deels te verwijderen, zodat een mooie open leefruimte ontstaat!
Keuken
De hoekkeuken is geplaatst in 2013 en voorzien van de volgende inbouwapparatuur: keramische kookplaat, afzuigkap, oven, koelkast met vriesvak, vaatwasser en een 10 liter close in boiler.
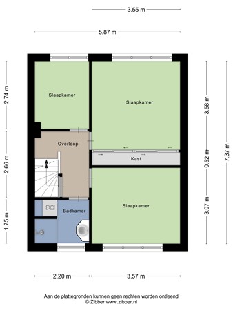
Eerste verdieping
De eerste verdieping heeft drie zeer goed bemeten slaapkamers en een badkamer. De kunststof draaikiep kozijnen zijn allemaal voorzien van een ventilatierooster. De grote slaapkamer aan de achterzijde heeft een inbouwkast over de volle breedte.
Badkamer
De badkamer is ingericht met een vierkanten douchehoek met deur en handdouche, wastafelmeubel met wastafel en wandkast, en een handdoekradiator. Natuurlijke ventilatie is hier goed mogelijk via het kunststof bovenraam. De wasmachine en droger, hier opgesteld, blijven voor u achter. U kunt deze natuurlijk ook verhuizen naar de tweede verdieping alwaar u een aansluiting kunt realiseren.
Tweede verdieping
De tweede verdieping is bereikbaar via een vaste trap en biedt toegang tot een grote vierde slaapkamer met dakkapel met ook hier een kunststof kozijn met draaikiepraam en radiator. Aan de ene zijde zijn knieschotten geplaatst waarachter u veel opbergruimte heeft. Aan de andere kant is onder de dakkapel ook nog opbergruimte gecreëerd. Op de voorzolder hangt de CV-ketel (bj nov 2022/laatste onderhoud sept 2025).
Tuin
Perfecte zonligging op het zuidwesten! Ook hier kunt u veel liefde kwijt in het creëren van een heerlijke buitenruimte. Het gehele kozijn en deur van de berging dient te worden vernieuwd, als ook de schutting aan de rechter zijde. De tuin beschikt over een achterom.